411 m²

St dizier (52100)

2 500 €
  •   Référence : VEGS-533
  •   Dernière mise à jour : 01/04/2026

NC
Classe Énergie
Non communiqué
info
NC
Indice d'émissions de gaz à effet de serre
Non communiqué
info
Pour la nouvelle notation (DPE à partir de juillet 2021), c'est la plus mauvaise des deux performances (énergie, climat) qui est retenue.

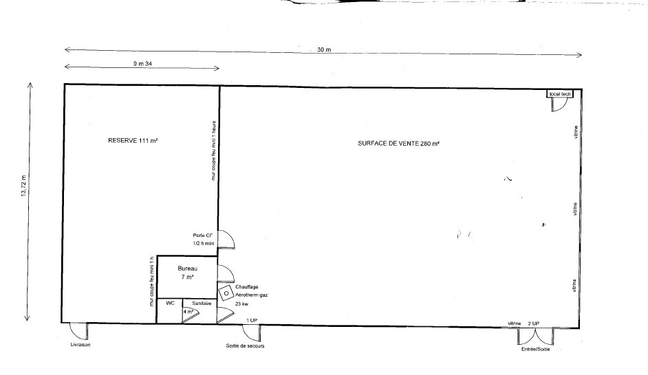
Local commercial de 411m2

Référence de l'annonce à rappeler : VEGS
A SAINT-DIZIER (52100) - Avenue du Général Sarrail , sur axe très passant et à 5 minutes du centre ville.

GB IMMOBILIER vous présente ce local comprenant une surface commerciale de 280 m2 avec grande vitrine, une réserve de 111m2, un bureau, des sanitaires et un parking privé et accessible.

Situé sur une route passante, ce local offre une excellente visibilité et ses qualités tecniques répondront à bos besoins.

Le parking à l'arrère attenant permet une meilleur axessibilité clients et des livraisons camions. Chauffage gaz.
--------------------------

Loyer : 2 500€ HT
Charges : Taxe Foncière à la charge du locataire (Environ 5000 € HT)
Honoraires charge locataire : 1 500€ HT (état des lieux inclus)
Dépôt de garantie : 15 000€ (soit 6 mois loyer hors charges)
DPE vièrge
Les informations sur les risques auxquels ce bien est exposé sont disponibles sur le site Géorisques GB IMMOBILIER, votre agence de proximité

Détails :
Mode de chauffage : AUTRE
Type de chauffage : GAZ
Format de chauffage : INDIVIDUEL


Taxe foncière : 0 euros

Contactez
GB IMMOBILIER

Nos horaires

  • Dimanche : Fermé

Voir +

Adresse postale

59 avenue de la République
52100 Saint-Dizier
Itinéraire

Site internet

gbi52.fr

N° de téléphone

Nous suivre

Siret : 79299085500050

Nous contacter

Contactez-nous pour l'annonce "Local commercial de 411m2", Réf. : VEGS-533

* Tous les champs sont obligatoires ** En cas de transmission de coordonnées téléphoniques vous reconnaissez accepter expressément d'être rappelé par l'annonceur