La douze (24330)
Maison - 4 pièce(s) - 120 m²
205 000
€ *
- Référence : 1127767_1127772_3522516
- Dernière mise à jour : 04/12/2025
Pour la nouvelle notation (DPE à partir de juillet 2021), c'est la plus mauvaise des deux performances (énergie, climat) qui est retenue.
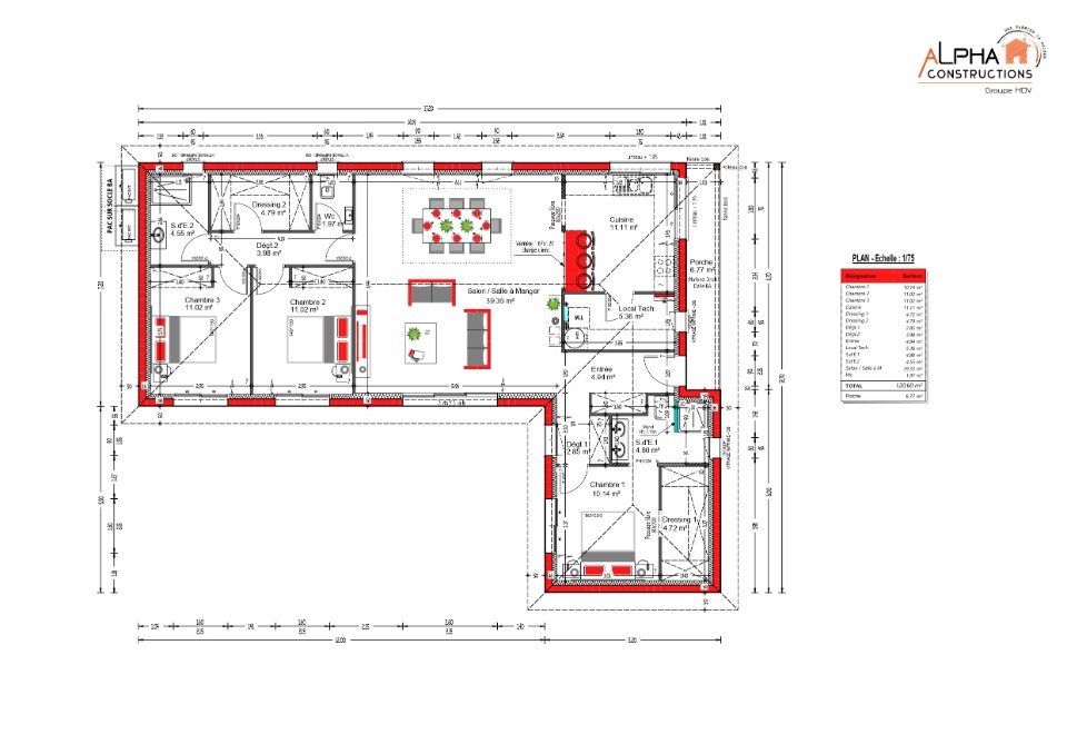
À seulement quelques kilomètres de Périgueux, découvrez ce projet de construction proposé par Alpha Constructions Boulazac Isle Manoire : une maison de plain-pied de 120 m², sur un terrain de 926 m², idéalement située dans un secteur recherché et paisible à La Douze.
Cette maison moderne et fonctionnelle offre :
3 chambres spacieuses
1 cuisine ouverte sur un grand séjour
2 salles d'eau
Des prestations de qualité et une belle luminosité
Proximité immédiate des écoles
Autoroute A89 à seulement 11 km
Commodités à proximité : bibliothèque, boulangerie, commerces
Pour en savoir plus sur ce projet ou vous faire accompagner dans vos démarches, contactez Blandine LEYMARIE
Alpha Constructions Boulazac Isle Manoire vous accompagne à chaque étape de votre projet de vie !
Nos offres de terrains sont proposées en collaboration avec nos partenaires fonciers pour des maisons dans le cadre de la loi du 10/12/1990, selon disponibilité.
Surface habitable : 120m2.
Nombre de pièces : 4.
Nombre de chambres : 3.
Prix terrain seul : 22000 euros.
Terrain proposé par un partenaire foncier selon disponibilité dans le cadre d'un projet de construction avec Alpha Constructions. Les descriptions, photographies, surfaces et prix illustrant l'annonce sont fournies à titre indicatif et ne sont pas contractuels. Non soumis au DPE. Différents modèles disponibles.
Alpha Constructions 24 Rue Yvon Delbos 24750 Boulazac
Référence : BL2289991_1
Bien En copropriété : non
Cette maison moderne et fonctionnelle offre :
3 chambres spacieuses
1 cuisine ouverte sur un grand séjour
2 salles d'eau
Des prestations de qualité et une belle luminosité
Proximité immédiate des écoles
Autoroute A89 à seulement 11 km
Commodités à proximité : bibliothèque, boulangerie, commerces
Pour en savoir plus sur ce projet ou vous faire accompagner dans vos démarches, contactez Blandine LEYMARIE
Alpha Constructions Boulazac Isle Manoire vous accompagne à chaque étape de votre projet de vie !
Nos offres de terrains sont proposées en collaboration avec nos partenaires fonciers pour des maisons dans le cadre de la loi du 10/12/1990, selon disponibilité.
Surface habitable : 120m2.
Nombre de pièces : 4.
Nombre de chambres : 3.
Prix terrain seul : 22000 euros.
Terrain proposé par un partenaire foncier selon disponibilité dans le cadre d'un projet de construction avec Alpha Constructions. Les descriptions, photographies, surfaces et prix illustrant l'annonce sont fournies à titre indicatif et ne sont pas contractuels. Non soumis au DPE. Différents modèles disponibles.
Alpha Constructions 24 Rue Yvon Delbos 24750 Boulazac
Référence : BL2289991_1
Bien En copropriété : non
* Prix net, hors frais notarié, d'enregistrement et de publicité foncière.
Contactez
ALPHA CONSTRUCTIONS
Siret : 41819231600499
Nous contacter