Aureilhan (40200)
Maison - 4 pièce(s) - 100 m²
352 500
€ *
- Référence : 1127742_1127774_3572699
- Dernière mise à jour : 18/12/2025
Pour la nouvelle notation (DPE à partir de juillet 2021), c'est la plus mauvaise des deux performances (énergie, climat) qui est retenue.
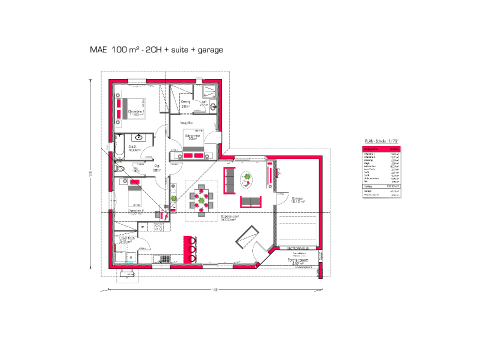
À Aureilhan, découvrez cette agréable maison de plain-pied implantée sur un terrain de 509 m², idéale pour ceux qui recherchent confort et tranquillité.
La maison se distingue par son architecture en L, qui crée un espace extérieur intimiste, parfait pour profiter du jardin en toute sérénité. Le séjour, très lumineux, est baigné de lumière grâce à ses grandes baies vitrées donnant directement sur l'extérieur.
Elle dispose de trois chambres, dont une suite parentale comprenant une salle d'eau et un dressing, offrant un véritable espace privé et confortable. Les autres chambres bénéficient également de beaux volumes, adaptés à une famille ou à des besoins de bureau.
Un garage vient compléter l'ensemble, apportant un espace de rangement ou de stationnement supplémentaire.
Maison fonctionnelle, lumineuse et bien située : une belle opportunité à ne pas manquer sur la commune d'Aureilhan.
Pour plus d'informations, Contact : O- Jérôme Masson.
Nos offres de terrains sont proposées en collaboration avec nos partenaires fonciers pour des maisons dans le cadre de la loi du 10/12/1990, selon disponibilité.
Surface habitable : 100m2.
Nombre de pièces : 4.
Nombre de chambres : 3.
Terrain proposé par un partenaire foncier selon disponibilité dans le cadre d'un projet de construction avec Couleur Villas. Les descriptions, photographies, surfaces et prix illustrant l'annonce sont fournies à titre indicatif et ne sont pas contractuels. Non soumis au DPE. Différents modèles disponibles.
Couleur Villas 204 Grand-Rue 40550 Léon
Référence : FS2338943
Bien En copropriété : non
La maison se distingue par son architecture en L, qui crée un espace extérieur intimiste, parfait pour profiter du jardin en toute sérénité. Le séjour, très lumineux, est baigné de lumière grâce à ses grandes baies vitrées donnant directement sur l'extérieur.
Elle dispose de trois chambres, dont une suite parentale comprenant une salle d'eau et un dressing, offrant un véritable espace privé et confortable. Les autres chambres bénéficient également de beaux volumes, adaptés à une famille ou à des besoins de bureau.
Un garage vient compléter l'ensemble, apportant un espace de rangement ou de stationnement supplémentaire.
Maison fonctionnelle, lumineuse et bien située : une belle opportunité à ne pas manquer sur la commune d'Aureilhan.
Pour plus d'informations, Contact : O- Jérôme Masson.
Nos offres de terrains sont proposées en collaboration avec nos partenaires fonciers pour des maisons dans le cadre de la loi du 10/12/1990, selon disponibilité.
Surface habitable : 100m2.
Nombre de pièces : 4.
Nombre de chambres : 3.
Terrain proposé par un partenaire foncier selon disponibilité dans le cadre d'un projet de construction avec Couleur Villas. Les descriptions, photographies, surfaces et prix illustrant l'annonce sont fournies à titre indicatif et ne sont pas contractuels. Non soumis au DPE. Différents modèles disponibles.
Couleur Villas 204 Grand-Rue 40550 Léon
Référence : FS2338943
Bien En copropriété : non
* Prix net, hors frais notarié, d'enregistrement et de publicité foncière.
Contactez
COULEUR VILLAS
Siret : 79393321900198
Nous contacter