Sauternes (33210)
Maison - 4 pièce(s) - 144 m²
397 806
€ *
- Référence : 1127761_1127772_3553714
- Dernière mise à jour : 16/01/2026
Pour la nouvelle notation (DPE à partir de juillet 2021), c'est la plus mauvaise des deux performances (énergie, climat) qui est retenue.
À Sauternes, à seulement quelques minutes de la gare de Langon et de l'autoroute A62, découvrez ce beau projet de construction sur un terrain boisé d'environ 950 m², situé dans un environnement résidentiel calme et recherché.
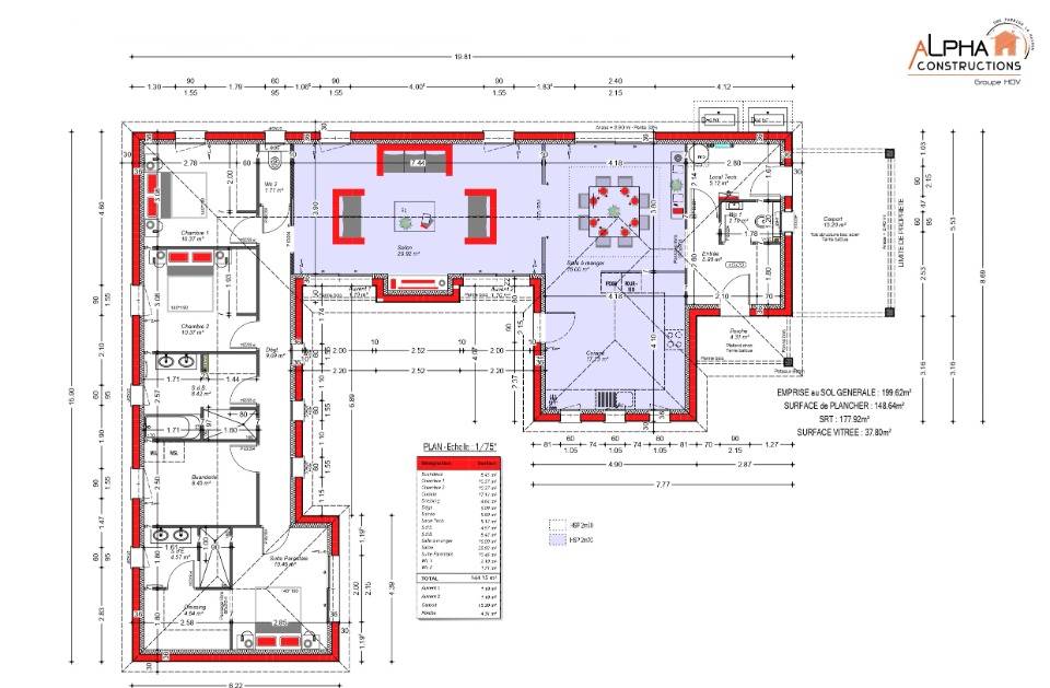
Nous vous proposons un projet de construction personnalisé avec cette maison contemporaine en L de 144 m² habitables, pensée pour offrir confort et luminosité au quotidien.
Elle se compose d'une grande pièce de vie traversante de près de 50 m² avec cuisine ouverte, donnant sur une belle terrasse et sa piscine. L'aile nuit comprend 3 chambres, une suite parentale avec dressing et salle d'eau, un bureau, une salle de bain familiale et un cellier attenant à la cuisine.
Cette maison séduit par son agencement fonctionnel, ses volumes équilibrés et ses nombreuses ouvertures vers l'extérieur. L'ensemble s'intègre parfaitement à ce cadre verdoyant, offrant un espace de vie moderne et paisible.
Le terrain permet d'aménager aisément un bel espace jardin et de profiter d'une vue dégagée sans vis-à-vis.
Un cadre de vie idéal pour ceux qui recherchent le calme de la nature tout en restant proches des commodités.
Pour étudier votre futur projet de construction, contactez Franck Hazera
Nos offres de terrains sont proposées en collaboration avec nos partenaires fonciers pour des maisons dans le cadre de la loi du 10/12/1990, selon disponibilité.
Surface habitable : 144m2.
Nombre de pièces : 4.
Nombre de chambres : 3.
Prix terrain seul : 77000 euros.
Terrain proposé par un partenaire foncier selon disponibilité dans le cadre d'un projet de construction avec Alpha Constructions. Les descriptions, photographies, surfaces et prix illustrant l'annonce sont fournies à titre indicatif et ne sont pas contractuels. Non soumis au DPE. Différents modèles disponibles.
Alpha Constructions 84 Cours des fossées 33210 Langon
Référence : FH2319832_1
Bien En copropriété : non
Nous vous proposons un projet de construction personnalisé avec cette maison contemporaine en L de 144 m² habitables, pensée pour offrir confort et luminosité au quotidien.
Elle se compose d'une grande pièce de vie traversante de près de 50 m² avec cuisine ouverte, donnant sur une belle terrasse et sa piscine. L'aile nuit comprend 3 chambres, une suite parentale avec dressing et salle d'eau, un bureau, une salle de bain familiale et un cellier attenant à la cuisine.
Cette maison séduit par son agencement fonctionnel, ses volumes équilibrés et ses nombreuses ouvertures vers l'extérieur. L'ensemble s'intègre parfaitement à ce cadre verdoyant, offrant un espace de vie moderne et paisible.
Le terrain permet d'aménager aisément un bel espace jardin et de profiter d'une vue dégagée sans vis-à-vis.
Un cadre de vie idéal pour ceux qui recherchent le calme de la nature tout en restant proches des commodités.
Pour étudier votre futur projet de construction, contactez Franck Hazera
Nos offres de terrains sont proposées en collaboration avec nos partenaires fonciers pour des maisons dans le cadre de la loi du 10/12/1990, selon disponibilité.
Surface habitable : 144m2.
Nombre de pièces : 4.
Nombre de chambres : 3.
Prix terrain seul : 77000 euros.
Terrain proposé par un partenaire foncier selon disponibilité dans le cadre d'un projet de construction avec Alpha Constructions. Les descriptions, photographies, surfaces et prix illustrant l'annonce sont fournies à titre indicatif et ne sont pas contractuels. Non soumis au DPE. Différents modèles disponibles.
Alpha Constructions 84 Cours des fossées 33210 Langon
Référence : FH2319832_1
Bien En copropriété : non
* Prix net, hors frais notarié, d'enregistrement et de publicité foncière.
Contactez
ALPHA CONSTRUCTIONS
Siret : 41819231600333
Nous contacter