Anglet (64600)
Maison - 5 pièce(s) - 130 m²
655 000
€ *
- Référence : 1127752_1127774_3551433
- Dernière mise à jour : 09/01/2026
Pour la nouvelle notation (DPE à partir de juillet 2021), c'est la plus mauvaise des deux performances (énergie, climat) qui est retenue.
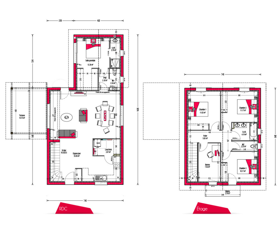
Emplacement recherché (rue du Bois belin à Anglet), Couleur Villas vous présente ce projet qui s'adapte particulièrement au terrain tout en respectant les préconisations du PLU régissant cette zone.
ce projet comporte trois chambres dont une de plain pied, deux salles d'eau et un grand balcon à l'étage.
Venez découvrir ce projet sur rendez-vous à notre agence de Bayonne
Votre conseillère Couleur Villas Mme Christine Baudoin (O67)
Nos offres de terrains sont proposées en collaboration avec nos partenaires fonciers pour des maisons dans le cadre de la loi du 10/12/1990, selon disponibilité.
Surface habitable : 130m2.
Nombre de pièces : 5.
Nombre de chambres : 4.
Terrain proposé par un partenaire foncier selon disponibilité dans le cadre d'un projet de construction avec Couleur Villas. Les descriptions, photographies, surfaces et prix illustrant l'annonce sont fournies à titre indicatif et ne sont pas contractuels. Non soumis au DPE. Différents modèles disponibles.
Couleur Villas 82 Avenue Maréchal Soult 64100 Bayonne
Référence : CB2317595
Bien En copropriété : non
ce projet comporte trois chambres dont une de plain pied, deux salles d'eau et un grand balcon à l'étage.
Venez découvrir ce projet sur rendez-vous à notre agence de Bayonne
Votre conseillère Couleur Villas Mme Christine Baudoin (O67)
Nos offres de terrains sont proposées en collaboration avec nos partenaires fonciers pour des maisons dans le cadre de la loi du 10/12/1990, selon disponibilité.
Surface habitable : 130m2.
Nombre de pièces : 5.
Nombre de chambres : 4.
Terrain proposé par un partenaire foncier selon disponibilité dans le cadre d'un projet de construction avec Couleur Villas. Les descriptions, photographies, surfaces et prix illustrant l'annonce sont fournies à titre indicatif et ne sont pas contractuels. Non soumis au DPE. Différents modèles disponibles.
Couleur Villas 82 Avenue Maréchal Soult 64100 Bayonne
Référence : CB2317595
Bien En copropriété : non
* Prix net, hors frais notarié, d'enregistrement et de publicité foncière.
Contactez
COULEUR VILLAS
N° de téléphone
Nous contacter