Vente Immeuble 5 pièces 142 m²

Chartres (28000)

250 000 € *
  •   Référence : 14330330_3288
  •   Dernière mise à jour : 17/04/2026

D
Classe Énergie
182 kWh/m² an
info
B
Indice d'émissions de gaz à effet de serre
7 kgéq/m².an
info
Pour la nouvelle notation (DPE à partir de juillet 2021), c'est la plus mauvaise des deux performances (énergie, climat) qui est retenue.
Informations sur les risques (ERP)
Les informations sur les risques auxquels ce bien est exposé sont disponibles sur le site Géorisques : https://www.georisques.gouv.fr
Date du diagnostic ERP : 10/05/2025

Immeuble Chartres 9,5% de rentabilité, secteur recherché

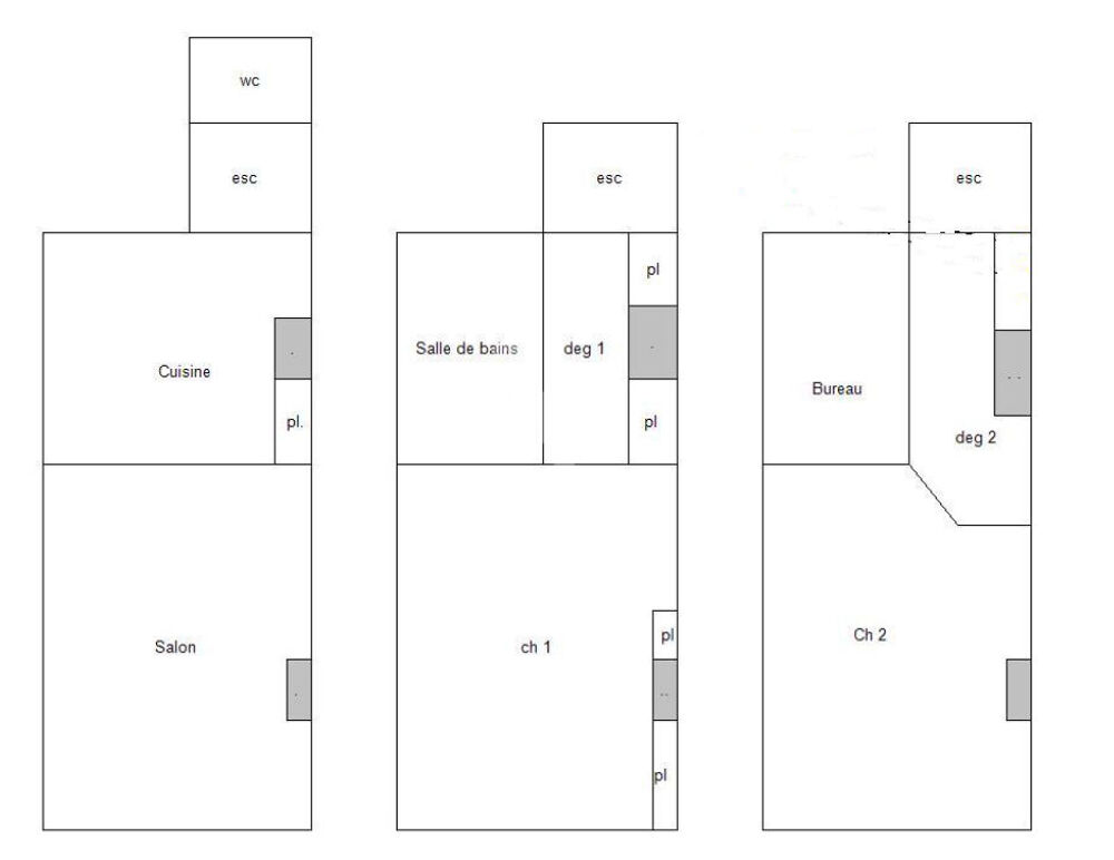
Votre agence L'Adresse Chartres vous propose en EXCLUSIVITÉ, en plein coeur de Chartres, un immeuble à usage mixte. Idéalement situé à proximité immédiate de la place Billard et de son marché, cet immeuble se compose : Au rez-de-chaussée : Un local commercial d'environ 50 m², comprenant une pièce principale d'environ 40 m², complétée par une salle de soins ainsi qu'un WC. Aux étages : Un appartement de 92 m², loué avec le local par un seul et même locataire, réparti comme suit : 1er étage : un débarras, une cuisine avec placard et un séjour de 20 m² 2ème étage : un couloir desservant une salle d'eau et une chambre 3ème étage : un bureau ainsi qu'une seconde chambre En sous-sol : Une cave vient compléter ce bien. Investissement clé en main : L'ensemble est loué à un locataire unique pour un montant mensuel de 1 980 euros hors charges, soit une rentabilité brute de 9,5 %. La taxe foncière est prise en charge sur le local commercial. Atout majeur : Des travaux importants ont été réalisés en 2023 (toiture, façade et sanitaires), vous garantissant aucun gros oeuvre à prévoir.

Honoraires à la charge de : Vendeur
Bien En copropriété : Non
Procédure sur le Syndicat des copropriétaires : NC
Taxe foncière : 2900 euros

* Prix net, hors frais notarié, d'enregistrement et de publicité foncière.

Contactez
L'ADRESSE CHARRES

Adresse postale

46 boulevard du Maréchal Foch
28000 Chartres
Itinéraire

Site internet

https:

N° de téléphone

Siret : 82968349900018

Nous contacter

Contactez-nous pour l'annonce "Immeuble Chartres 9,5% de rentabilité, secteur recherché", Réf. : 14330330_3288

* Tous les champs sont obligatoires ** En cas de transmission de coordonnées téléphoniques vous reconnaissez accepter expressément d'être rappelé par l'annonceur