Estang (32240)
Estang (32240)
369 600
€ *
- Référence : 11367DQ612
- Dernière mise à jour : 30/12/2025
Pour la nouvelle notation (DPE à partir de juillet 2021), c'est la plus mauvaise des deux performances (énergie, climat) qui est retenue.
Propriété comprenant 2 gîtes indépendants, l'ensemble implanté au calme sur une surface parcellaire arboré et paysagé de 8600 m2.
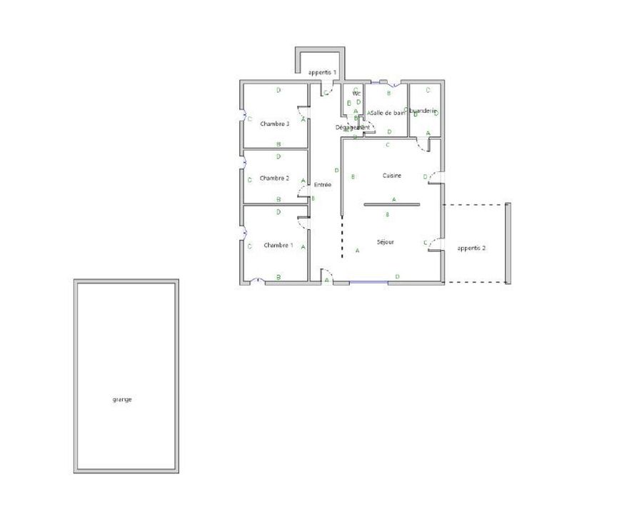
Le gîte N° 1 de 96 m2 se compose de la façon suivante :
Un salon séjour de 20 m2 avec une très jolie cheminée en pierres doté d'un poêle à bois, une buanderie, une salle de bains, 2 chambres, un coin nuit ou bureau, un WC séparé.
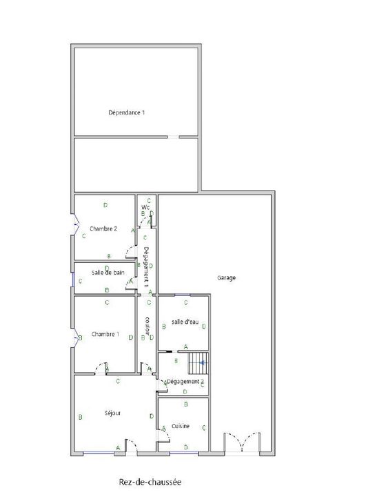
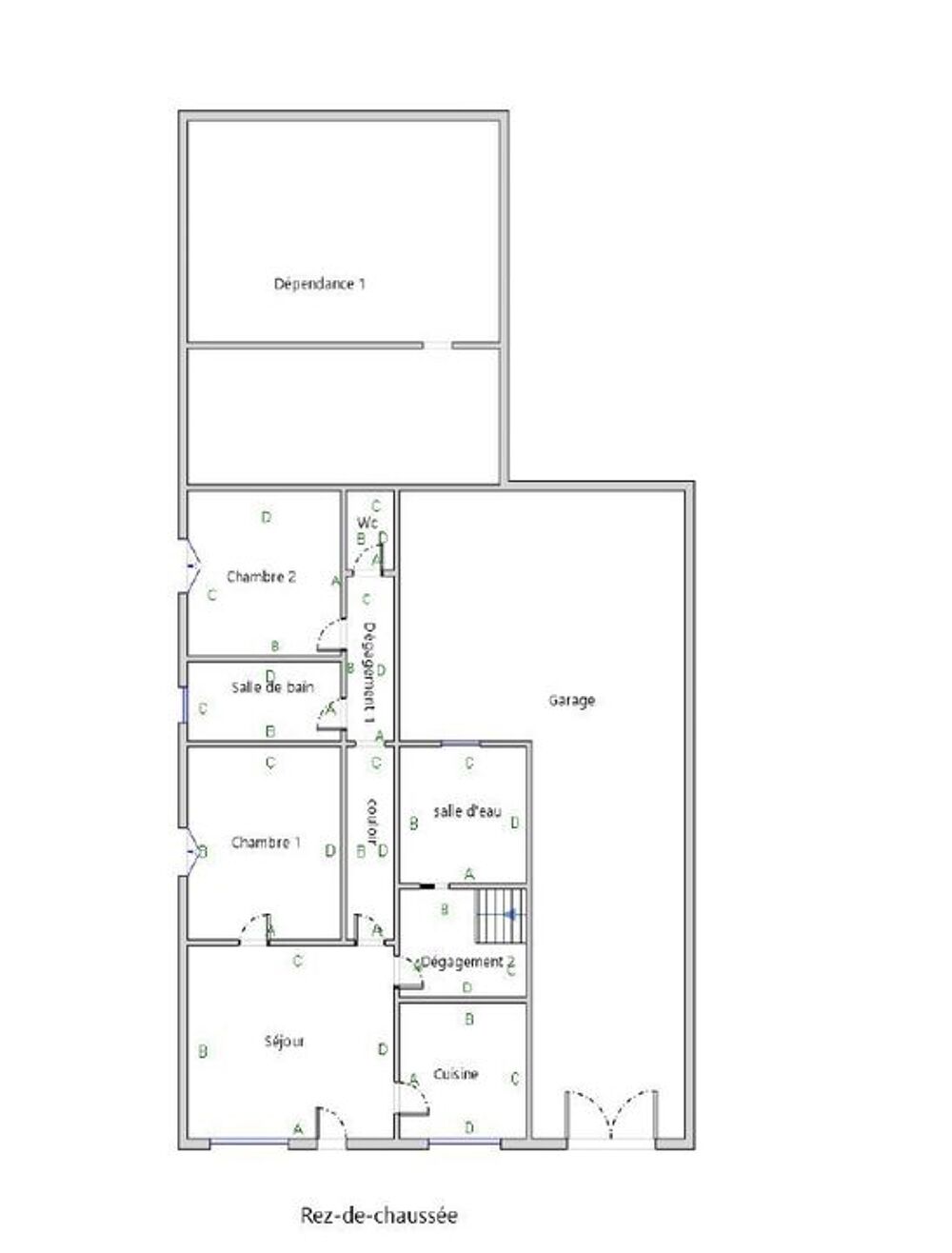
Le gîte N°2 de 87 m2 se compose de la manière suivante:
Au rez-de-chaussée un salon séjour de 18.48 m2 avec une cheminée équipée d'un poêle à bois, une cuisine séparée, une buanderie, une salle d'eau avec douche italienne et WC, 2 chambres, une salle de bains, un WC séparé, l'étage abrite une chambre de 12.40 m2.
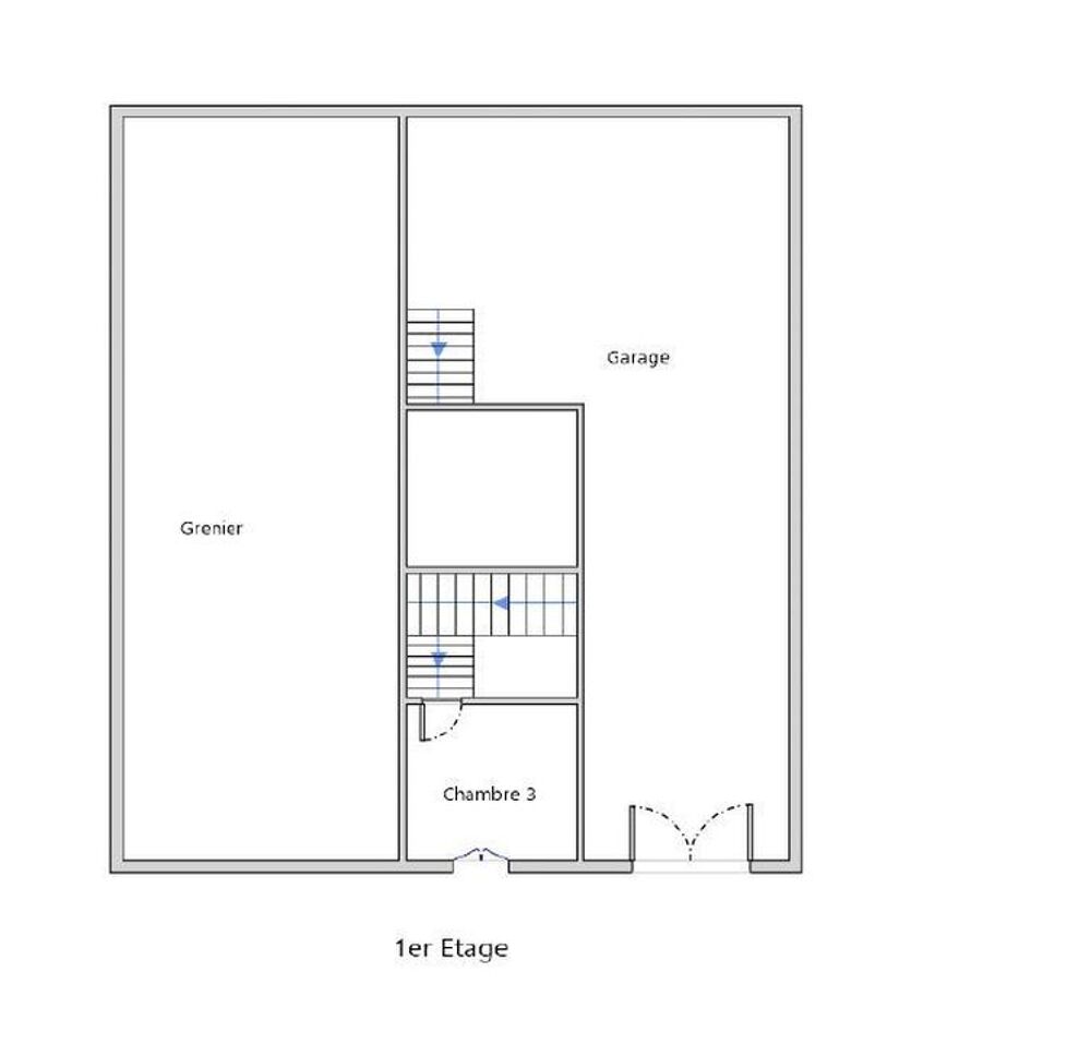
Sur le Côté du Gîte N° un garage de 41 m2 permettant l'accès aux combles ainsi qu'une grange de 55 m2.
INFORMATIONS DIVERSES:
Étable: 60 m2 avec appentis de 22 m2
Dépendance métallique : 86 m2
Dépendance de 34 m2 accueillant à l'intérieur la filtration de la piscine.
Piscine avec un abris coulissant : 9 x4 profondeur maximum 1.75 m traitement au chlore.
Une fosse septique par gîte, compteur individuel par gîte.
Propriété située à 4 km des principaux commerces avec ramassage scolaire à proximité.
Autoroute A 65 20 minutes, Mont de Marsan 25 minutes.
GÎTE 1: DPE 297 /Classe E consommation entre 1550 E et 2140 E an.
GÎTE 2: DPE 337 / Classe F consommation entre 1580 E et 2200 E an.
Les informations sur les risques auxquels ce bien est exposé sont disponibles sur le site Géorisques : www.
georisques.
gouv.
fr.Pour plus d'informations et pour une visite, contactez Hervé DESPLAT : CLAIRIMMO Barbotan
- 3 avenue des Thermes 32150 CAZAUBON
- Service Transaction : Service Location : email : RCS 851 986 620 Agent commercial indépendant du réseau national Clairimmo N° RSAC : 495 108 755
Numéro de mandat : 11367
Plus d'information :
- Piscine
Honoraires à la charge du Vendeur
Bien En copropriété : NON
Le gîte N° 1 de 96 m2 se compose de la façon suivante :
Un salon séjour de 20 m2 avec une très jolie cheminée en pierres doté d'un poêle à bois, une buanderie, une salle de bains, 2 chambres, un coin nuit ou bureau, un WC séparé.
Le gîte N°2 de 87 m2 se compose de la manière suivante:
Au rez-de-chaussée un salon séjour de 18.48 m2 avec une cheminée équipée d'un poêle à bois, une cuisine séparée, une buanderie, une salle d'eau avec douche italienne et WC, 2 chambres, une salle de bains, un WC séparé, l'étage abrite une chambre de 12.40 m2.
Sur le Côté du Gîte N° un garage de 41 m2 permettant l'accès aux combles ainsi qu'une grange de 55 m2.
INFORMATIONS DIVERSES:
Étable: 60 m2 avec appentis de 22 m2
Dépendance métallique : 86 m2
Dépendance de 34 m2 accueillant à l'intérieur la filtration de la piscine.
Piscine avec un abris coulissant : 9 x4 profondeur maximum 1.75 m traitement au chlore.
Une fosse septique par gîte, compteur individuel par gîte.
Propriété située à 4 km des principaux commerces avec ramassage scolaire à proximité.
Autoroute A 65 20 minutes, Mont de Marsan 25 minutes.
GÎTE 1: DPE 297 /Classe E consommation entre 1550 E et 2140 E an.
GÎTE 2: DPE 337 / Classe F consommation entre 1580 E et 2200 E an.
Les informations sur les risques auxquels ce bien est exposé sont disponibles sur le site Géorisques : www.
georisques.
gouv.
fr.Pour plus d'informations et pour une visite, contactez Hervé DESPLAT : CLAIRIMMO Barbotan
- 3 avenue des Thermes 32150 CAZAUBON
- Service Transaction : Service Location : email : RCS 851 986 620 Agent commercial indépendant du réseau national Clairimmo N° RSAC : 495 108 755
Numéro de mandat : 11367
Plus d'information :
- Piscine
Honoraires à la charge du Vendeur
Bien En copropriété : NON
* Prix net, hors frais notarié, d'enregistrement et de publicité foncière.
Contactez
CLAIRIMMO
N° de téléphone
Nous contacter
Visite virtuelle