Vente Maison 4 pièces 85 m²

Olivet (45160) Exclusivité

199 900 € *
  •   Référence : VM5524-IMMODREAM
  •   Dernière mise à jour : 20/04/2026

NC
Classe Énergie
Non communiqué
info
NC
Indice d'émissions de gaz à effet de serre
Non communiqué
info
Pour la nouvelle notation (DPE à partir de juillet 2021), c'est la plus mauvaise des deux performances (énergie, climat) qui est retenue.

Maison à fort potentiel dans un quartier calme

Située dans un environnement paisible, venez découvrir cette maison avec un fort potentiel à rénover.

Elle se compose actuellement au rez-de-chaussée d'une entrée, d'un vaste séjour ouvert sur la cuisine lumineux, de plus de 40m², d'une dépendance accessible de la maison (aménagée en suite parentale sur les plans) avec un grenier.
L'étage se compose actuellement d'un pallier, d'une grande chambre de plus de 22m² avec un dressing de 7m².

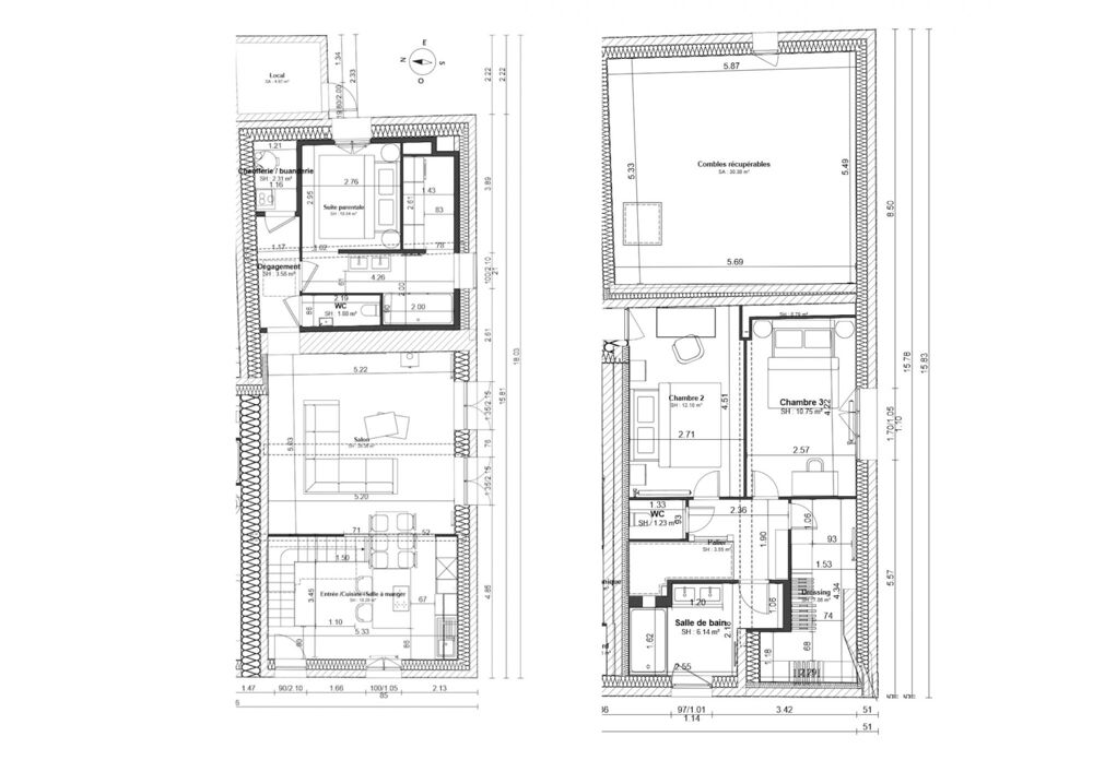
Les plans en photo constituent une proposition d'aménagement de la maison (afin d'avoir 3 chambres minimum), en modifiant les espaces actuels.


Pour en savoir plus ou visiter, contactez votre conseiller via les coordonnées se trouvant en dernière photo de l'annonce.

Honoraires inclus de 5.27% TTC à la charge de l'acquéreur.
Prix hors honoraires 189 900 €.
Non soumis au DPE.
Les informations sur les risques auxquels ce bien est exposé sont disponibles sur le site Géorisques : georisques.gouv.fr.
Ce bien vous est proposé par un agent commercial (Entreprise individuelle).

Votre conseiller IMMODREAM : Damien LERICOLAIS
Agent commercial (Entreprise individuelle)
RCP SEGAP LLOYD'S
TTC
Numéro de mandat : 3514

Honoraires à la charge de l'acquéreur
Pourcentage des Honoraires à la charge de l'Acquéreur : 5.27 %
Bien En copropriété : NON

* Prix net, hors frais notarié, d'enregistrement et de publicité foncière.

Contactez
IMMODREAM

Adresse postale

3 Rue DU CHATEAU D'EAU
45380 Chaingy
Itinéraire

Site internet

https:

N° de téléphone

Siret : 79388788600034

Nous contacter

Contactez-nous pour l'annonce "Maison à fort potentiel dans un quartier calme", Réf. : VM5524-IMMODREAM

* Tous les champs sont obligatoires ** En cas de transmission de coordonnées téléphoniques vous reconnaissez accepter expressément d'être rappelé par l'annonceur