Courtacon (77560)
Terrain - 776 m² Exclusivité
53 000
€ *
- Référence : 767PI76
- Dernière mise à jour : 02/01/2026
Pour la nouvelle notation (DPE à partir de juillet 2021), c'est la plus mauvaise des deux performances (énergie, climat) qui est retenue.
A Courtacon, axe Nationale 4, 15 minutes de la gare de Provins, 10 minutes de La Ferté Gaucher.
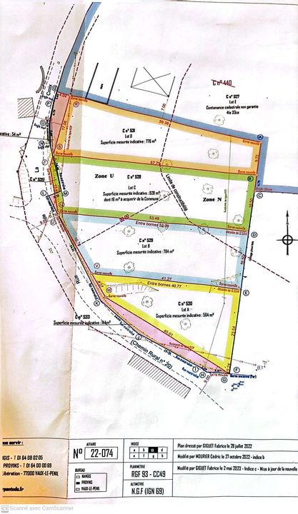
Terrain à bâtir d'une surface de 776 m², non viabilisé, raccordement sur rue à proximité, façade 17 mètres, lot D d'un plan de division.
Commune en regroupement scolaire pour le primaire, collège et lycée.
A visiter rapidement, contactez-nous pour organiser une visite Mme REGNIER Laurence
- POWERIMMO Seine et Marne
- RSAC 881183115
Les informations sur les risques auxquels ce bien est exposé sont disponibles sur le site Géorisques : www.georisques.gouv.fr
Numéro de mandat : 767
Honoraires à la charge du Vendeur
Bien En copropriété : NON
Terrain à bâtir d'une surface de 776 m², non viabilisé, raccordement sur rue à proximité, façade 17 mètres, lot D d'un plan de division.
Commune en regroupement scolaire pour le primaire, collège et lycée.
A visiter rapidement, contactez-nous pour organiser une visite Mme REGNIER Laurence
- POWERIMMO Seine et Marne
- RSAC 881183115
Les informations sur les risques auxquels ce bien est exposé sont disponibles sur le site Géorisques : www.georisques.gouv.fr
Numéro de mandat : 767
Honoraires à la charge du Vendeur
Bien En copropriété : NON
* Prix net, hors frais notarié, d'enregistrement et de publicité foncière.
Contactez
POWER IMMO
Siret : 81393672100022
Nous contacter