Bureaux axe passant
26200 Montélimar
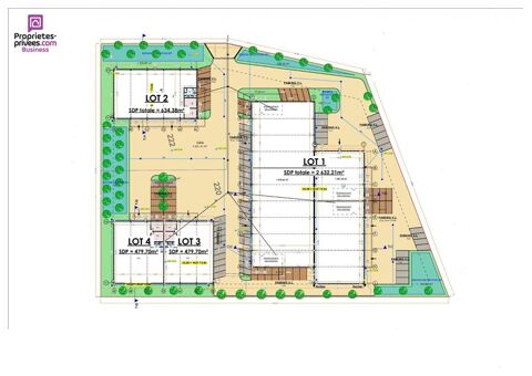
Montélimar, proche centre ville, avec parking, bureaux de 241m2,locaux totalement achevés en open space avec climatisation réversible, sanitaires et cuisine aménagée (hors electroménager)au rez de chaussée d un ensemble, entièrement réhabilité.tva...