Haut-Rhin (68)
Installez-vous dans un local commercial, entièrement rénové et décoré avec goût en octobre 2021, déjà aménagé pour accueillir un salon de coiffure et un institut de beauté. moderne, chaleureux et parfaitement fonctionnel, ce bien est une véritable...
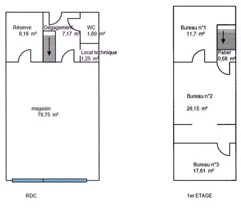
Espace professionnel de 365m² rez-de-chaussée : entrée, accueil, w.c pmr 5 bureaux en location de 8 m² à 45 m². à l'étage : 3 bureaux en location de 38 m² à 67 m². un espace cuisine de 20 m² . située dans...
Iad france - lionel schuller () vous propose : opportunité rare - bâtiment industriel à aménager selon vos besoins à buhl vous recherchez un espace atypique pour développer votre activité professionnelle ou transformer en loft...
Situé à fessenheim (68740), ce local avec logement de fonction bénéficie d'un emplacement stratégique dans une charmante commune dynamique. proche des commerces locaux, et des axes routiers, entre mulhouse et colmar et à 10 minutes de la frontière...
à vendre – local commercial de 671 m² à bergholtz situé à l'entrée de bergholtz, en provenance de guebwiller, ce bien bénéficie d'un emplacement stratégique offrant à la fois une belle visibilité et un accès facile depuis les axes...
Iad france - jeremy sezille () vous propose : en exclusivité iad france – fonds de commerce "palais de cernay" – cernay (68) emplacement stratégique : situé 1, rue de la charité, 68700 cernay, en zone commerciale active à proximité de...
En exclusivite ! ce fonds de commerce de fleurs est idéalement placé en bord de route et offre des possibilités de parkings. plusieurs vitrines permettent la mise en valeur des produits. une reprise du fonds pour une autre activité...
Local commercial de 245 m2 plus annexes à mulhouse. vendu avec locataire mais pouvant se libérer si vous désirez l'exploiter. situé au pied d'un immeuble et dispose d'un terrain privatif de 962 m2 permettant des extensions ou autres...
Livré brut sans finition menuiserie métallique / fenêtres double vitrage / climatisation réversible collective / accès personne handicapée possibilité d'acquérir en plus des places de parking autres surfaces disponibles, nous consulter...
Iad france - ghislaine gherardi () vous propose : à vendre : fonds de commerce hôtel-restaurant – 665 m² environ opportunité rare ! je vous propose à la vente un fonds de commerce d'un hôtel-restaurant de plus de 665 m² environ,...
Spécial investisseur – local professionnel vendu loué – faibles charges – vente à soultz ce local professionnel d'une surface de 54,18 m² (loi carrez) est vendu loué, idéal pour un investisseur souhaitant un revenu locatif immédiat....
Iad france - pascal loeb () vous propose : opportunité unique, fond de commerce d'une activité de bar pmu + fdj, licence iv. cet établissement offre depuis 2007 un lieu de rencontres et d'échanges, fréquenté par une clientèle d'habitués....
Iad france - maude ruggeri () vous propose : fonds de commerce exceptionnel - boulangerie à soultz découvrez cette boulangerie d'exception, idéalement située à soultz, offrant un cadre chaleureux et un fort potentiel de rentabilité....
Iad france - patrick thomann () vous propose : a kaysersberg, réputé pour son marché de noël et son hypercentre historique, à vendre fond de commerce épicerie fine et produit locaux d'une surface de 40 m2 environ. situation idéale par le...
Iad france - arnaud demuth () vous propose : ferrette - bar, licence iv a vendre fonds de commerce d'une activité de bar pub licence iv le bar est fonctionnel immédiatement, possibilité de créer une cuisine dans la cave. localisée...
Iad france - vanessa maine () vous propose : murs commerciaux à fréland en zone artisanale, déjà loués avec un rendement attractif ! investissement clé en main en zone artisanale à fréland : idéal pour les investisseurs à la...
Optimhome vous présente : 68000 – colmar – local commercial – bureaux commerciaux - plain-pied - acces pmr (personnes à mobilité réduite) - 156 m² – zone commerciale dynamique – parking à proximitè optimhome vous...
Situé au rdc du pole médical, local de 89m2 livré brut sans finition menuiserie métallique / fenêtres double vitrage / climatisation réversible collective / accès personne handicapée possibilité d'acquérir en plus des places de...
Local de 89m2situe au rdc du pole médical livré brut sans finition menuiserie métallique / fenêtres double vitrage / climatisation réversible collective / accès personne handicapée possibilité d'acquerir en plus des places de...
Situé au 1er étage vendu en état brut disponible immédiatement menuiserie métallique / fenêtres double vitrage / climatisation réversible collective / accès personne handicapée / ascenseur possibilité d'acquérir en plus des...
Iad france - arnaud demuth () vous propose : cession de fonds de commerce - restaurant avec licence iv - cernay centre. idéalement situé au centre de cernay (68700), venez découvrir ce superbe restaurant avec licence iv à...
Iad france - ghislaine gherardi () vous propose : beau local professionnel 73,60 m² environ – cité de l'habitat et du bien-étre – lutterbach idéalement situé au coeur de la zone d'activité de la cité de l'habitat et du bien-étre à...
Iad france - carole klups () vous propose : bureaux à mulhouse – visibilitè maximale pour votre activitè professionnels à la recherche d'un emplacement stratégique à mulhouse ? ce local de 181 m² environ, en rez-de-chaussée avec...
31 - 53 sur 53 annonces
Nos partenaires locaux
Création d'une alerte