-
Annonces
- Immobilier
- Immobilier Neuf
- Construction maison
- Midi-Pyrénées
- Haute-Garonne (31)
- Aureville (31320)
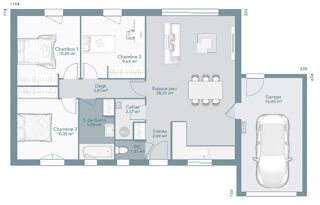
Maison neuve Aureville (31320)
Le top villes pour votre recherche immobilière
- Rebigue (31320)
- Vigoulet-Auzil (31320)
- Clermont-le-Fort (31810)
- Corronsac (31450)
- Mervilla (31320)
- Castanet-Tolosan (31320)
- Pompertuzat (31450)
- Labarthe-sur-Lèze (31860)
- Venerque (31810)
- Pins-Justaret (31860)
- Auzeville-Tolosane (31320)
- Montbrun-Lauragais (31450)
- Roquettes (31120)
- Ramonville-Saint-Agne (31520)
- Donneville (31450)
- Labège (31670)
- Saubens (31600)
- Eaunes (31600)
- Muret (31600)
- Cugnaux (31270)
Quel constructeur choisir proche d'Aureville ?
Trouvez un professionnel afin de faire construire votre maison individuelle dans la région, consultez l'annuaire des "constructeurs de maisons Midi-Pyrenées"