-
Annonces
- Immobilier
- Immobilier Neuf
- Construction maison
- Île-de-France
- Essonne (91)
- Boissy-le-Cutté (91590)
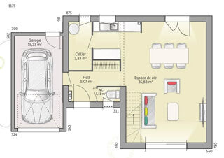
Maison neuve Boissy-le-Cutté (91590)
Comment acheter une maison à Boissy-le-Cutté ?
Avez-vous pensé à l'immobilier ancien ? Découvrez nos annonces de maisons à vendre à Boissy-le-Cutté.
Le top villes pour votre recherche immobilière
- Cerny (91590)
- La Ferté-Alais (91590)
- Lardy (91510)
- Vayres-sur-Essonne (91820)
- Baulne (91590)
- Itteville (91760)
- Boutigny-sur-Essonne (91820)
- Saint-Vrain (91770)
- Étampes (91150)
- Ballancourt-sur-Essonne (91610)
- Avrainville (91630)
- Marolles-en-Hurepoix (91630)
- Vert-le-Petit (91710)
- Saint-Sulpice-de-Favières (91910)
- La Norville (91290)
- Breux-Jouy (91650)
- Égly (91520)
- Champcueil (91750)
- Arpajon (91290)
- Breuillet (91650)
Quel constructeur choisir proche de Boissy-le-Cutté ?
Trouvez un professionnel afin de faire construire votre maison individuelle dans la région, consultez l'annuaire des "constructeurs de maisons Ile-de-france"