-
Annonces
- Immobilier
- Immobilier Neuf
- Construction maison
- Haute-Normandie
- Eure (27)
- Bourg-Beaudouin (27380)
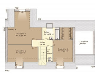
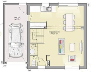
Maison neuve Bourg-Beaudouin (27380)
Le top villes pour votre recherche immobilière
- Fresne-le-Plan (76520)
- Charleval (27380)
- Romilly-sur-Andelle (27610)
- Gouy (76520)
- Perruel (27910)
- Bois-l'Évêque (76160)
- Gaillardbois-Cressenville (27440)
- Pîtres (27590)
- Franqueville-Saint-Pierre (76520)
- Bacqueville (27440)
- Saint-Jacques-sur-Darnétal (76160)
- Ymare (76520)
- Saint-Aubin-Épinay (76160)
- Touffreville (27440)
- Ry (76116)
- Saint-Aubin-Celloville (76520)
- Servaville-Salmonville (76116)
- Le Manoir (27460)
- Alizay (27460)
- Écouis (27440)
Quel constructeur choisir proche de Bourg-Beaudouin ?
Trouvez un professionnel afin de faire construire votre maison individuelle dans la région, consultez l'annuaire des "constructeurs de maisons Haute-Normandie"