-
Annonces
- Immobilier
- Immobilier Neuf
- Construction maison
- Bretagne
- Côtes-d'Armor (22)
- Châtelaudren (22170)
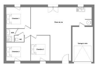
Maison neuve Châtelaudren (22170)
Le top villes pour votre recherche immobilière
- Châtelaudren-Plouagat (22170)
- Plélo (22170)
- Plerneuf (22170)
- Pordic (22590)
- Binic (22520)
- Étables-sur-Mer (22680)
- Ploufragan (22440)
- Plérin (22190)
- Saint-Quay-Portrieux (22410)
- Trégueux (22950)
- Saint-Brandan (22800)
- Langueux (22360)
- Paimpol (22500)
- Ploubazlanec (22620)
- Andel (22400)
- Pléneuf-Val-André (22370)
- Lamballe (22400)
- Pleubian (22610)
- Erquy (22430)
- Plestan (22640)
Quel constructeur choisir proche de Châtelaudren ?
Trouvez un professionnel afin de faire construire votre maison individuelle dans la région, consultez l'annuaire des "constructeurs de maisons Bretagne"