-
Annonces
- Immobilier
- Immobilier Neuf
- Construction maison
- Haute-Normandie
- Eure (27)
- Émanville (27190)
Maison neuve Émanville (27190)
8 annonces "maisons à construire"
Maison 114 m2 Émanville (27)
Maison F6 (114 m²) en vente à Émanville
MAISON 6 PIÈCES NEUVE - PROCHE D'ÉVREUX
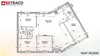
À deux pas d'Évreux, notre agence Les Maisons Extraco Gravigny est ravie de vous proposer à vendre à Émanville (27190), cette maison de 6 pièces de 114 m² et de 1 127 m² de terrain. Elle inclut cinq chambres, une cuisine ouverte sur le séjour et deux salles de bains.
Cette maison compte 2 niveaux. Elle est neuve.
Une école élémentaire est implantée dans le quartier. Niveau transports, il y a la gare Romilly-la-Puthenaye à moins de 10 minutes en voiture. Les nationales N13 et N154 sont accessibles à moins de 19 km. On trouve une boucherie-charcuterie dans les environs.
Son prix de vente est de 230 000 €.
Contactez notre agence (Aurélie KTARI : ) pour obtenir de plus amples informations sur la maison. Faites de vos projets immobiliers une réalité avec Les Maisons Extraco Gravigny.
Nos offres de terrains sont proposées en collaboration avec nos partenaires fonciers pour des maisons dans le cadre de la loi du 10/12/1990, selon disponibilité.
Surface habitable : 114m2.
Nombre de pièces : 6.
Nombre de chambres : 5.
Prix terrain seul : 49000 euros.
Terrain proposé par un partenaire foncier selon disponibilités et autorisation de publicité au prix de 49 000 €. Hors droit d'enregistrement et frais de notaire. Terrain + Maison proposés au prix de 230 000 € (Hors branchements et raccordements, papiers peints, peintures, revêtement de sol dans les chambres. Tarif modifiable sans préavis). Etiquette énergie : A. Différents modèles disponibles pour ce terrain. Assurances et garanties du constructeur (RC professionnelle, décennale, dommage ouvrage, garantie de remboursement de l'acompte, livraison à prix et délai convenu) :
EXTRACO - Construction Rénovation 165 Avenue Aristide Briand 27930 Gravigny
Référence : AK2466210_2
992785599738 1005515_1005154_3706987 Vente immobilier Maison Émanville (27190) Maison 6 pièce(s) 114 m²
326 annonces
27/03/2026
Maison 177 m2 Émanville (27)
VENTE d'une maison T6 (177 m²) à Émanville
MAISON 6 PIÈCES NEUVE - PROCHE D'ÉVREUX
À vendre : à 18 km d'Évreux, votre agence Les Maisons Extraco Gravigny est ravie de vous proposer à Émanville (27190), cette maison de 6 pièces de 177 m² et de 1 127 m² de terrain. Elle offre cinq chambres, une cuisine ouverte sur le séjour, deux salles de bains, un cellier et un garage.
C'est une maison de 2 niveaux. Elle est neuve.
Une école élémentaire est implantée dans le quartier. Niveau transports, il y a la gare Romilly-la-Puthenaye à moins de 10 minutes en voiture. Les nationales N13 et N154 sont accessibles à moins de 19 km. On trouve une boucherie-charcuterie à proximité de la maison.
Son prix de vente est de 419 000 €.
N'hésitez pas à prendre contact avec Aurélie KTARI () pour tout renseignement sur la maison.
Nos offres de terrains sont proposées en collaboration avec nos partenaires fonciers pour des maisons dans le cadre de la loi du 10/12/1990, selon disponibilité.
Surface habitable : 177m2.
Nombre de pièces : 6.
Nombre de chambres : 5.
Prix terrain seul : 49000 euros.
Terrain proposé par un partenaire foncier selon disponibilités et autorisation de publicité au prix de 49 000 €. Hors droit d'enregistrement et frais de notaire. Terrain + Maison proposés au prix de 419 000 € (Hors branchements et raccordements, papiers peints, peintures, revêtement de sol dans les chambres. Tarif modifiable sans préavis). Etiquette énergie : A. Différents modèles disponibles pour ce terrain. Assurances et garanties du constructeur (RC professionnelle, décennale, dommage ouvrage, garantie de remboursement de l'acompte, livraison à prix et délai convenu) :
EXTRACO - Construction Rénovation 165 Avenue Aristide Briand 27930 Gravigny
Référence : AK2466210_4
992785599740 1005515_1005154_3706989 Vente immobilier Maison Émanville (27190) Maison 6 pièce(s) 177 m²
326 annonces
27/03/2026
Maison 85 m2 Émanville (27)
Émanville : maison T4 (85 m²) en vente
MAISON 4 PIÈCES NEUVE - PROCHE D'ÉVREUX
À quelques kilomètres d'Évreux, nous vous présentons cette maison de 4 pièces de plain-pied de 85 m² en vente à Émanville (27190).
Son intérieur offre trois chambres, une cuisine ouverte sur le séjour, deux salles de bains, un cellier et un garage. La maison est neuve.
Le terrain de la propriété s'étend sur 1 127 m².
Il y a une école élémentaire dans le quartier. Niveau transports, on trouve la gare Romilly-la-Puthenaye à moins de 10 minutes en voiture. Les nationales N13 et N154 sont accessibles à moins de 19 km. Il y a une boucherie-charcuterie à quelques minutes.
Elle est à vendre pour la somme de 209 000 €.
Contactez notre agence (KTARI Aurélie : ) pour tout renseignement sur cette maison. Concrétisez vos projets immobiliers avec Les Maisons Extraco Gravigny.
Nos offres de terrains sont proposées en collaboration avec nos partenaires fonciers pour des maisons dans le cadre de la loi du 10/12/1990, selon disponibilité.
Surface habitable : 85m2.
Nombre de pièces : 4.
Nombre de chambres : 3.
Prix terrain seul : 49000 euros.
Terrain proposé par un partenaire foncier selon disponibilités et autorisation de publicité au prix de 49 000 €. Hors droit d'enregistrement et frais de notaire. Terrain + Maison proposés au prix de 209 000 € (Hors branchements et raccordements, papiers peints, peintures, revêtement de sol dans les chambres. Tarif modifiable sans préavis). Etiquette énergie : A. Différents modèles disponibles pour ce terrain. Assurances et garanties du constructeur (RC professionnelle, décennale, dommage ouvrage, garantie de remboursement de l'acompte, livraison à prix et délai convenu) :
EXTRACO - Construction Rénovation 165 Avenue Aristide Briand 27930 Gravigny
Référence : AK2466210_1
992785599737 1005515_1005154_3706986 Vente immobilier Maison Émanville (27190) Maison 4 pièce(s) 85 m²
326 annonces
27/03/2026
Maison 114 m2 Émanville (27)
VENTE d'une maison de 5 pièces (114 m²) à Émanville
MAISON 5 PIÈCES NEUVE - PROCHE D'ÉVREUX
En vente à 18 km d'Évreux, à Émanville (27190), nous vous présentons cette maison de 5 pièces de 114 m². Elle se divise en quatre chambres, une cuisine ouverte sur le séjour et une salle de bains.
Le terrain de la propriété s'étend sur 1 127 m².
C'est une maison de 2 niveaux. Elle est neuve.
Il y a une école élémentaire dans le quartier. Niveau transports, on trouve la gare Romilly-la-Puthenaye à moins de 10 minutes en voiture. Les nationales N13 et N154 sont accessibles à moins de 19 km. Il y a une boucherie-charcuterie à proximité.
Son prix de vente est de 349 000 €.
N'hésitez pas à prendre contact avec Aurélie KTARI () pour toute question sur cette maison, sur les modalités de vente ou sur les démarches à suivre. Les Maisons Extraco Gravigny est là pour vous accompagner dans tous vos projets immobiliers.
Nos offres de terrains sont proposées en collaboration avec nos partenaires fonciers pour des maisons dans le cadre de la loi du 10/12/1990, selon disponibilité.
Surface habitable : 114m2.
Nombre de pièces : 5.
Nombre de chambres : 4.
Prix terrain seul : 49000 euros.
Terrain proposé par un partenaire foncier selon disponibilités et autorisation de publicité au prix de 49 000 €. Hors droit d'enregistrement et frais de notaire. Terrain + Maison proposés au prix de 349 000 € (Hors branchements et raccordements, papiers peints, peintures, revêtement de sol dans les chambres. Tarif modifiable sans préavis). Etiquette énergie : A. Différents modèles disponibles pour ce terrain. Assurances et garanties du constructeur (RC professionnelle, décennale, dommage ouvrage, garantie de remboursement de l'acompte, livraison à prix et délai convenu) :
EXTRACO - Construction Rénovation 165 Avenue Aristide Briand 27930 Gravigny
Référence : AK2466210_3
992785599739 1005515_1005154_3706988 Vente immobilier Maison Émanville (27190) Maison 5 pièce(s) 114 m²
326 annonces
27/03/2026
Maison 101 m2 Émanville (27)
VENTE d'une maison de 5 pièces (101 m²) à Émanville
Proche d'Évreux - À découvrir à Émanville (27190) : maison neuve 5 pièces à vendre, 101 m² de surface sur 1 000 m² de terrain. Conçue de plain-pied, elle compte quatre chambres, une cuisine et une salle de bains.
À dix minutes : gare (Romilly-la-Puthenaye), écoles, boucherie-charcuterie. Accès nationales N13 et N154 à 19 km.
Cette maison de 5 pièces est à vendre pour la somme de 135 800 €.
Prenez contact avec Maisons France Confort Boos / pour obtenir de plus amples renseignements sur la maison. Maisons France Confort Boos est là pour vous accompagner dans toutes vos démarches.
Annonce proposée par un Agent Commercial Partenaire.
Nos offres de terrains sont proposées en collaboration avec nos partenaires fonciers pour des maisons dans le cadre de la loi du 10/12/1990, selon disponibilité.
Surface habitable : 101m2.
Nombre de pièces : 5.
Nombre de chambres : 4.
Prix terrain seul : 75000 euros.
Terrain proposé par un partenaire foncier selon disponibilités et autorisation de publicité au prix de 75 000 €. Hors droit d'enregistrement et frais de notaire. Terrain + Maison proposés au prix de 135 800 € (Hors branchements et raccordements, papiers peints, peintures, revêtement de sol dans les chambres. Tarif modifiable sans préavis). Etiquette énergie : A. Différents modèles disponibles pour ce terrain. Assurances et garanties du constructeur (RC professionnelle, décennale, dommage ouvrage, garantie de remboursement de l'acompte, livraison à prix et délai convenu) : HEXAOM Services est enregistré auprès de l'ORIAS en tant que Courtier en financement, Niveau 1, sous le numéro 14001345.
MAISONS FRANCE CONFORT 68 rue de la Forge Féret 76520 Boos
Référence : AL2404111_1
992784577810 1005161_1005119_3640134 Vente immobilier Maison Émanville (27190) Maison 5 pièce(s) 101 m²
746 annonces
25/03/2026
Maison 71 m2 Émanville (27)
VENTE d'une maison de 3 pièces (71 m²) à Émanville
Proche d'Évreux - À vendre à Émanville (27190) : maison neuve 3 pièces de 71 m² et de 1 000 m² de terrain. Conçue de plain-pied, elle inclut deux chambres, une cuisine et une salle de bains.
À dix minutes : gare (Romilly-la-Puthenaye), écoles, boucherie-charcuterie. Nationales N13 et N154 à 19 km.
Cette maison de 3 pièces est à vendre pour la somme de 189 500 €.
Prenez contact avec Maisons France Confort Boos / pour toute question sur la maison.
Annonce proposée par un Agent Commercial Partenaire.
Nos offres de terrains sont proposées en collaboration avec nos partenaires fonciers pour des maisons dans le cadre de la loi du 10/12/1990, selon disponibilité.
Surface habitable : 71m2.
Nombre de pièces : 3.
Nombre de chambres : 2.
Prix terrain seul : 75000 euros.
Terrain proposé par un partenaire foncier selon disponibilités et autorisation de publicité au prix de 75 000 €. Hors droit d'enregistrement et frais de notaire. Terrain + Maison proposés au prix de 189 500 € (Hors branchements et raccordements, papiers peints, peintures, revêtement de sol dans les chambres. Tarif modifiable sans préavis). Etiquette énergie : A. Différents modèles disponibles pour ce terrain. Assurances et garanties du constructeur (RC professionnelle, décennale, dommage ouvrage, garantie de remboursement de l'acompte, livraison à prix et délai convenu) : HEXAOM Services est enregistré auprès de l'ORIAS en tant que Courtier en financement, Niveau 1, sous le numéro 14001345.
MAISONS FRANCE CONFORT 68 rue de la Forge Féret 76520 Boos
Référence : AL2404111_2
992784577811 1005161_1005119_3640135 Vente immobilier Maison Émanville (27190) Maison 3 pièce(s) 71 m²
746 annonces
25/03/2026
Maison 71 m2 Émanville (27)
Émanville : maison T3 (71 m²) à vendre
Proche d'Évreux - À découvrir à Émanville (27190) : maison neuve 3 pièces en vente, 71 m² sur 1 000 m² de terrain. Conçue de plain-pied, elle inclut deux chambres, une cuisine et une salle de bains.
À proximité : gare (Romilly-la-Puthenaye), écoles, boucherie-charcuterie. Nationales N13 et N154 à 19 km.
Cette maison de 3 pièces est à vendre pour la somme de 187 900 €.
Contactez Maisons France Confort Boos / pour obtenir de plus amples informations sur la maison ou sur les démarches à suivre. Maisons France Confort Boos est là pour vous accompagner à toutes les étapes de l'achat.
Annonce proposée par un Agent Commercial Partenaire.
Nos offres de terrains sont proposées en collaboration avec nos partenaires fonciers pour des maisons dans le cadre de la loi du 10/12/1990, selon disponibilité.
Surface habitable : 71m2.
Nombre de pièces : 3.
Nombre de chambres : 2.
Prix terrain seul : 75000 euros.
Terrain proposé par un partenaire foncier selon disponibilités et autorisation de publicité au prix de 75 000 €. Hors droit d'enregistrement et frais de notaire. Terrain + Maison proposés au prix de 187 900 € (Hors branchements et raccordements, papiers peints, peintures, revêtement de sol dans les chambres. Tarif modifiable sans préavis). Etiquette énergie : A. Différents modèles disponibles pour ce terrain. Assurances et garanties du constructeur (RC professionnelle, décennale, dommage ouvrage, garantie de remboursement de l'acompte, livraison à prix et délai convenu) : HEXAOM Services est enregistré auprès de l'ORIAS en tant que Courtier en financement, Niveau 1, sous le numéro 14001345.
MAISONS FRANCE CONFORT 68 rue de la Forge Féret 76520 Boos
Référence : AL2404111_4
992784577813 1005161_1005119_3640137 Vente immobilier Maison Émanville (27190) Maison 3 pièce(s) 71 m²
746 annonces
25/03/2026
Maison 101 m2 Émanville (27)
VENTE : maison de 5 pièces (101 m²) à Émanville
Proche d'Évreux - À Émanville (27190), maison neuve à vendre de 5 pièces, 101 m² de surface sur 1 000 m² de terrain. Elle comporte quatre chambres, une cuisine et une salle de bains.
À proximité : gare (Romilly-la-Puthenaye), écoles, boucherie-charcuterie. Nationales N13 et N154 accessibles à 19 km.
Cette maison de 5 pièces est à vendre pour la somme de 235 900 €.
Contactez Maisons France Confort Boos / pour tout renseignement sur la maison ou sur les modalités de vente. Maisons France Confort Boos vous accompagne dans toutes vos démarches et dans tous vos projets immobiliers.
Annonce proposée par un Agent Commercial Partenaire.
Nos offres de terrains sont proposées en collaboration avec nos partenaires fonciers pour des maisons dans le cadre de la loi du 10/12/1990, selon disponibilité.
Surface habitable : 101m2.
Nombre de pièces : 5.
Nombre de chambres : 4.
Prix terrain seul : 75000 euros.
Terrain proposé par un partenaire foncier selon disponibilités et autorisation de publicité au prix de 75 000 €. Hors droit d'enregistrement et frais de notaire. Terrain + Maison proposés au prix de 235 900 € (Hors branchements et raccordements, papiers peints, peintures, revêtement de sol dans les chambres. Tarif modifiable sans préavis). Etiquette énergie : A. Différents modèles disponibles pour ce terrain. Assurances et garanties du constructeur (RC professionnelle, décennale, dommage ouvrage, garantie de remboursement de l'acompte, livraison à prix et délai convenu) : HEXAOM Services est enregistré auprès de l'ORIAS en tant que Courtier en financement, Niveau 1, sous le numéro 14001345.
MAISONS FRANCE CONFORT 68 rue de la Forge Féret 76520 Boos
Référence : AL2404111_3
992784577812 1005161_1005119_3640136 Vente immobilier Maison Émanville (27190) Maison 5 pièce(s) 101 m²
746 annonces
25/03/2026
Activez une alerte mail pour recevoir automatiquement les nouvelles annonces :
Maison neuve Émanville (27190)
Le top villes pour votre recherche immobilière
- Ormes (27190)
- Barquet (27170)
- Claville (27180)
- Aulnay-sur-Iton (27180)
- Les Ventes (27180)
- Beaumont-le-Roger (27170)
- Parville (27180)
- Quittebeuf (27110)
- Bacquepuis (27930)
- Sacquenville (27930)
- Épreville-près-le-Neubourg (27110)
- Aviron (27930)
- Le Neubourg (27110)
- Évreux (27000)
- Saint-Aubin-d'Écrosville (27110)
- Angerville-la-Campagne (27930)
- Normanville (27930)
- Reuilly (27930)
- Tourneville (27930)
- Thibouville (27800)
- -
Quel constructeur choisir proche de Émanville ?
Trouvez un professionnel afin de faire construire votre maison individuelle dans la région, consultez l'annuaire des "constructeurs de maisons Haute-Normandie"