-
Annonces
- Immobilier
- Immobilier Neuf
- Construction maison
- Île-de-France
- Essonne (91)
- La Forêt-le-Roi (91410)
Maison neuve La Forêt-le-Roi (91410)
8 annonces "maisons à construire"
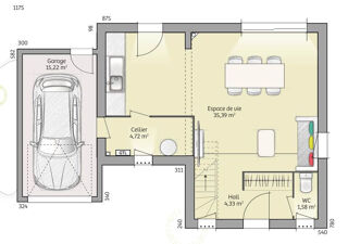
Maison 90 m2 La Forêt-le-Roi (91)
La Forêt-le-Roi : maison de 5 pièces (90 m²) en vente
Paris à 50 min (RER C, Sermaise) - À vendre, bénéficiant d'un emplacement d'exception dans La Forêt-le-Roi (91410) : maison neuve 5 pièces de 90 m² et de 594 m² de terrain. Son intérieur est composé de trois chambres, d'une cuisine et de deux salles de bains.
À proximité : RER C (Sermaise), gares, École Maternelle École Publique, bibliothèque et commerce. Sainte-Geneviève-des-Bois à 28 km.
Cette maison de 5 pièces est proposée à l'achat pour 281 500 €.
Contactez Anne DELOHEN () pour obtenir de plus amples renseignements sur la maison, sur les démarches à suivre ou sur les modalités de vente. Faites de vos projets immobiliers une réalité avec Maisons France Confort Nemours.
Annonce proposée par un Agent Commercial Partenaire.
Nos offres de terrains sont proposées en collaboration avec nos partenaires fonciers pour des maisons dans le cadre de la loi du 10/12/1990, selon disponibilité.
Surface habitable : 90m2.
Nombre de pièces : 5.
Nombre de chambres : 3.
Prix terrain seul : 99000 euros.
Terrain proposé par un partenaire foncier selon disponibilités et autorisation de publicité au prix de 99 000 €. Hors droit d'enregistrement et frais de notaire. Terrain + Maison proposés au prix de 281 500 € (Hors branchements et raccordements, papiers peints, peintures, revêtement de sol dans les chambres. Tarif modifiable sans préavis). Etiquette énergie : A. Différents modèles disponibles pour ce terrain. Assurances et garanties du constructeur (RC professionnelle, décennale, dommage ouvrage, garantie de remboursement de l'acompte, livraison à prix et délai convenu) : HEXAOM Services est enregistré auprès de l'ORIAS en tant que Courtier en financement, Niveau 1, sous le numéro 14001345.
MAISONS FRANCE CONFORT 16 Avenue Carnot 77140 Nemours
Référence : AD2472298_3
992785659602 1005261_1005119_3710546 Vente immobilier Maison La Forêt-le-Roi (91410) Maison 5 pièce(s) 90 m²
1 110 annonces
31/03/2026
Maison 90 m2 La Forêt-le-Roi (91)
La Forêt-le-Roi : maison de 5 pièces (90 m²) en vente
Paris à 50 min (RER C, Sermaise) - À découvrir à La Forêt-le-Roi (91410) : maison neuve 5 pièces à vendre. 2 niveaux, surface de 90 m² et 498 m² de terrain. Elle dispose de trois chambres, d'une cuisine et d'une salle de bains.
À dix minutes : RER C (Sermaise), gares, École Maternelle École Publique, bibliothèque et commerce. Sainte-Geneviève-des-Bois à 28 km.
Le prix de vente de cette maison de 5 pièces est de 276 900 €.
Prenez contact avec notre agence (Anne DELOHEN : ) pour tout renseignement sur la maison ou sur les modalités de vente. Maisons France Confort Nemours est là pour vous accompagner à toutes les étapes de l'achat.
Annonce proposée par un Agent Commercial Partenaire.
Nos offres de terrains sont proposées en collaboration avec nos partenaires fonciers pour des maisons dans le cadre de la loi du 10/12/1990, selon disponibilité.
Surface habitable : 90m2.
Nombre de pièces : 5.
Nombre de chambres : 3.
Prix terrain seul : 97000 euros.
Terrain proposé par un partenaire foncier selon disponibilités et autorisation de publicité au prix de 97 000 €. Hors droit d'enregistrement et frais de notaire. Terrain + Maison proposés au prix de 276 900 € (Hors branchements et raccordements, papiers peints, peintures, revêtement de sol dans les chambres. Tarif modifiable sans préavis). Etiquette énergie : A. Différents modèles disponibles pour ce terrain. Assurances et garanties du constructeur (RC professionnelle, décennale, dommage ouvrage, garantie de remboursement de l'acompte, livraison à prix et délai convenu) : HEXAOM Services est enregistré auprès de l'ORIAS en tant que Courtier en financement, Niveau 1, sous le numéro 14001345.
MAISONS FRANCE CONFORT 16 Avenue Carnot 77140 Nemours
Référence : AD2472314_1
992785659603 1005261_1005119_3710547 Vente immobilier Maison La Forêt-le-Roi (91410) Maison 5 pièce(s) 90 m²
1 110 annonces
31/03/2026
Maison 120 m2 La Forêt-le-Roi (91)
La Forêt-le-Roi : maison T7 (120 m²) à vendre
Paris à 50 min (RER C, Sermaise) - Maison neuve 7 pièces en vente à La Forêt-le-Roi (91410) avec 2 niveaux, une surface de 120 m² et de 498 m² de terrain. Elle comporte quatre chambres, une cuisine et deux salles de bains.
À dix minutes : RER C (Sermaise), gares, École Maternelle École Publique, bibliothèque et commerce. Sainte-Geneviève-des-Bois à 28 km.
Cette maison de 7 pièces est à vendre pour la somme de 376 800 €.
Contactez Anne DELOHEN (tél : ) pour tout renseignement sur la maison ou sur les démarches à suivre. Maisons France Confort Nemours vous accompagne dans tous vos projets immobiliers et à toutes les étapes de l'achat.
Annonce proposée par un Agent Commercial Partenaire.
Nos offres de terrains sont proposées en collaboration avec nos partenaires fonciers pour des maisons dans le cadre de la loi du 10/12/1990, selon disponibilité.
Surface habitable : 120m2.
Nombre de pièces : 7.
Nombre de chambres : 4.
Prix terrain seul : 97000 euros.
Terrain proposé par un partenaire foncier selon disponibilités et autorisation de publicité au prix de 97 000 €. Hors droit d'enregistrement et frais de notaire. Terrain + Maison proposés au prix de 376 800 € (Hors branchements et raccordements, papiers peints, peintures, revêtement de sol dans les chambres. Tarif modifiable sans préavis). Etiquette énergie : A. Différents modèles disponibles pour ce terrain. Assurances et garanties du constructeur (RC professionnelle, décennale, dommage ouvrage, garantie de remboursement de l'acompte, livraison à prix et délai convenu) : HEXAOM Services est enregistré auprès de l'ORIAS en tant que Courtier en financement, Niveau 1, sous le numéro 14001345.
MAISONS FRANCE CONFORT 16 Avenue Carnot 77140 Nemours
Référence : AD2472314_2
992785659604 1005261_1005119_3710548 Vente immobilier Maison La Forêt-le-Roi (91410) Maison 7 pièce(s) 120 m²
1 110 annonces
31/03/2026
Maison 89 m2 La Forêt-le-Roi (91)
Maison de 6 pièces (89 m²) à vendre à La Forêt-le-Roi
Paris à 50 min (RER C, Sermaise) - En vente, bénéficiant d'un emplacement privilégié dans La Forêt-le-Roi (91410) : maison neuve 6 pièces de 89 m² et de 594 m² de terrain. Son intérieur compte quatre chambres, une cuisine et une salle de bains.
À dix minutes : RER C (Sermaise), gares, École Maternelle École Publique, bibliothèque et commerce. Sainte-Geneviève-des-Bois à 28 km.
Cette maison de 6 pièces est proposée à l'achat pour 262 000 €.
Contactez notre agence (DELOHEN Anne : ) pour toute question sur la maison ou sur les modalités de vente. Maisons France Confort Nemours est là pour vous accompagner dans toutes vos démarches.
Annonce proposée par un Agent Commercial Partenaire.
Nos offres de terrains sont proposées en collaboration avec nos partenaires fonciers pour des maisons dans le cadre de la loi du 10/12/1990, selon disponibilité.
Surface habitable : 89m2.
Nombre de pièces : 6.
Nombre de chambres : 4.
Prix terrain seul : 99000 euros.
Terrain proposé par un partenaire foncier selon disponibilités et autorisation de publicité au prix de 99 000 €. Hors droit d'enregistrement et frais de notaire. Terrain + Maison proposés au prix de 262 000 € (Hors branchements et raccordements, papiers peints, peintures, revêtement de sol dans les chambres. Tarif modifiable sans préavis). Etiquette énergie : A. Différents modèles disponibles pour ce terrain. Assurances et garanties du constructeur (RC professionnelle, décennale, dommage ouvrage, garantie de remboursement de l'acompte, livraison à prix et délai convenu) : HEXAOM Services est enregistré auprès de l'ORIAS en tant que Courtier en financement, Niveau 1, sous le numéro 14001345.
MAISONS FRANCE CONFORT 16 Avenue Carnot 77140 Nemours
Référence : AD2472298_2
992785659601 1005261_1005119_3710545 Vente immobilier Maison La Forêt-le-Roi (91410) Maison 6 pièce(s) 89 m²
1 110 annonces
31/03/2026
Maison 60 m2 La Forêt-le-Roi (91)
Maison de 4 pièces (60 m²) en vente à La Forêt-le-Roi
Paris à 50 min (RER C, Sermaise) - À La Forêt-le-Roi (91410), maison neuve à vendre de 4 pièces, 60 m² de surface et 498 m² de terrain. Conçue de plain-pied, elle inclut deux chambres, une cuisine et une salle de bains.
À dix minutes : RER C (Sermaise), gares, École Maternelle École Publique, bibliothèque et commerce. Sainte-Geneviève-des-Bois à 28 km.
Cette maison de 4 pièces est proposée à l'achat pour 216 700 €.
Prenez contact avec notre agence (DELOHEN Anne : ) pour obtenir de plus amples informations sur la maison ou sur les démarches à suivre. Maisons France Confort Nemours vous accompagne dans tous vos projets immobiliers et à toutes les étapes de l'achat.
Annonce proposée par un Agent Commercial Partenaire.
Nos offres de terrains sont proposées en collaboration avec nos partenaires fonciers pour des maisons dans le cadre de la loi du 10/12/1990, selon disponibilité.
Surface habitable : 60m2.
Nombre de pièces : 4.
Nombre de chambres : 2.
Prix terrain seul : 97000 euros.
Terrain proposé par un partenaire foncier selon disponibilités et autorisation de publicité au prix de 97 000 €. Hors droit d'enregistrement et frais de notaire. Terrain + Maison proposés au prix de 216 700 € (Hors branchements et raccordements, papiers peints, peintures, revêtement de sol dans les chambres. Tarif modifiable sans préavis). Etiquette énergie : A. Différents modèles disponibles pour ce terrain. Assurances et garanties du constructeur (RC professionnelle, décennale, dommage ouvrage, garantie de remboursement de l'acompte, livraison à prix et délai convenu) : HEXAOM Services est enregistré auprès de l'ORIAS en tant que Courtier en financement, Niveau 1, sous le numéro 14001345.
MAISONS FRANCE CONFORT 16 Avenue Carnot 77140 Nemours
Référence : AD2472314_3
992785659605 1005261_1005119_3710549 Vente immobilier Maison La Forêt-le-Roi (91410) Maison 4 pièce(s) 60 m²
1 110 annonces
31/03/2026
Maison 90 m2 La Forêt-le-Roi (91)
La Forêt-le-Roi : maison de 5 pièces (90 m²) en vente
Paris à 50 min (RER C, Sermaise) - À découvrir bénéficiant d'un emplacement privilégié dans La Forêt-le-Roi (91410) : maison neuve 5 pièces à vendre. Surface de 90 m² sur 594 m² de terrain. Conçue de plain-pied, elle propose trois chambres, une cuisine et une salle de bains.
Proche RER C (Sermaise), gares, École Maternelle École Publique, bibliothèque et commerce. Sainte-Geneviève-des-Bois à 28 km.
Cette maison de 5 pièces est à vendre pour la somme de 268 900 €.
Prenez contact avec Anne DELOHEN () pour plus de renseignements sur la maison, sur les démarches à suivre ou sur les modalités de vente. Maisons France Confort Nemours vous accompagne à toutes les étapes de votre projet et dans tous vos projets immobiliers.
Annonce proposée par un Agent Commercial Partenaire.
Nos offres de terrains sont proposées en collaboration avec nos partenaires fonciers pour des maisons dans le cadre de la loi du 10/12/1990, selon disponibilité.
Surface habitable : 90m2.
Nombre de pièces : 5.
Nombre de chambres : 3.
Prix terrain seul : 99000 euros.
Terrain proposé par un partenaire foncier selon disponibilités et autorisation de publicité au prix de 99 000 €. Hors droit d'enregistrement et frais de notaire. Terrain + Maison proposés au prix de 268 900 € (Hors branchements et raccordements, papiers peints, peintures, revêtement de sol dans les chambres. Tarif modifiable sans préavis). Etiquette énergie : A. Différents modèles disponibles pour ce terrain. Assurances et garanties du constructeur (RC professionnelle, décennale, dommage ouvrage, garantie de remboursement de l'acompte, livraison à prix et délai convenu) : HEXAOM Services est enregistré auprès de l'ORIAS en tant que Courtier en financement, Niveau 1, sous le numéro 14001345.
MAISONS FRANCE CONFORT 16 Avenue Carnot 77140 Nemours
Référence : AD2472298_1
992785659600 1005261_1005119_3710544 Vente immobilier Maison La Forêt-le-Roi (91410) Maison 5 pièce(s) 90 m²
1 110 annonces
31/03/2026
Maison 70 m2 La Forêt-le-Roi (91)
VENTE : maison de 4 pièces (70 m²) à La Forêt-le-Roi
Paris à 50 min (RER C, Sermaise) - À découvrir à La Forêt-le-Roi (91410) : maison neuve 4 pièces à vendre, 70 m² de surface et 500 m² de terrain. Son intérieur compte deux chambres, une cuisine et une salle de bains.
Proche RER C (Sermaise), gares, École Maternelle École Publique, bibliothèque et commerces. Sainte-Geneviève-des-Bois à 28 km.
Le prix de vente de cette maison de 4 pièces est de 290 000 €.
Contactez notre agence (RAOUX Jerome : ) pour obtenir de plus amples renseignements sur la maison de plain-pied, sur les modalités de vente ou sur les démarches à suivre. Concrétisez vos projets immobiliers avec Maisons France Confort Nemours.
Annonce proposée par un Agent Commercial Partenaire.
Nos offres de terrains sont proposées en collaboration avec nos partenaires fonciers pour des maisons dans le cadre de la loi du 10/12/1990, selon disponibilité.
Surface habitable : 70m2.
Nombre de pièces : 4.
Nombre de chambres : 2.
Prix terrain seul : 97000 euros.
Terrain proposé par un partenaire foncier selon disponibilités et autorisation de publicité au prix de 97 000 €. Hors droit d'enregistrement et frais de notaire. Terrain + Maison proposés au prix de 290 000 € (Hors branchements et raccordements, papiers peints, peintures, revêtement de sol dans les chambres. Tarif modifiable sans préavis). Etiquette énergie : A. Différents modèles disponibles pour ce terrain. Assurances et garanties du constructeur (RC professionnelle, décennale, dommage ouvrage, garantie de remboursement de l'acompte, livraison à prix et délai convenu) : HEXAOM Services est enregistré auprès de l'ORIAS en tant que Courtier en financement, Niveau 1, sous le numéro 14001345.
MAISONS FRANCE CONFORT 16 Avenue Carnot 77140 Nemours
Référence : JR2396542_2
992784523275 1005261_1005119_3633598 Vente immobilier Maison La Forêt-le-Roi (91410) Maison 4 pièce(s) 70 m²
1 110 annonces
22/03/2026
Maison 90 m2 La Forêt-le-Roi (91)
Maison de 5 pièces (90 m²) à vendre à La Forêt-le-Roi
Paris à 50 min (RER C, Sermaise) - À découvrir à La Forêt-le-Roi (91410) : maison neuve 5 pièces à vendre, 2 niveaux, 90 m² de surface et 500 m² de terrain. Elle est composée de trois chambres, d'une cuisine et d'une salle de bains.
À dix minutes : RER C (Sermaise), gares, École Maternelle École Publique, bibliothèque et commerces. Sainte-Geneviève-des-Bois à 28 km.
Cette maison de 5 pièces est à vendre pour la somme de 310 000 €.
Contactez Jerome RAOUX (tél : ) pour toute question sur la maison, sur les démarches à suivre ou sur les modalités de vente. Maisons France Confort Nemours est là pour vous accompagner à toutes les étapes de l'achat.
Annonce proposée par un Agent Commercial Partenaire.
Nos offres de terrains sont proposées en collaboration avec nos partenaires fonciers pour des maisons dans le cadre de la loi du 10/12/1990, selon disponibilité.
Surface habitable : 90m2.
Nombre de pièces : 5.
Nombre de chambres : 3.
Prix terrain seul : 97000 euros.
Terrain proposé par un partenaire foncier selon disponibilités et autorisation de publicité au prix de 97 000 €. Hors droit d'enregistrement et frais de notaire. Terrain + Maison proposés au prix de 310 000 € (Hors branchements et raccordements, papiers peints, peintures, revêtement de sol dans les chambres. Tarif modifiable sans préavis). Etiquette énergie : A. Différents modèles disponibles pour ce terrain. Assurances et garanties du constructeur (RC professionnelle, décennale, dommage ouvrage, garantie de remboursement de l'acompte, livraison à prix et délai convenu) : HEXAOM Services est enregistré auprès de l'ORIAS en tant que Courtier en financement, Niveau 1, sous le numéro 14001345.
MAISONS FRANCE CONFORT 16 Avenue Carnot 77140 Nemours
Référence : JR2396542_1
992784523274 1005261_1005119_3633597 Vente immobilier Maison La Forêt-le-Roi (91410) Maison 5 pièce(s) 90 m²
1 110 annonces
22/03/2026
Activez une alerte mail pour recevoir automatiquement les nouvelles annonces :
Maison neuve La Forêt-le-Roi (91410)
Le top villes pour votre recherche immobilière
- Les Granges-le-Roi (91410)
- Dourdan (91410)
- Saint-Escobille (91410)
- Saint-Chéron (91530)
- Saint-Cyr-sous-Dourdan (91410)
- Étampes (91150)
- Étréchy (91580)
- Saint-Sulpice-de-Favières (91910)
- Saint-Maurice-Montcouronne (91530)
- Boinville-le-Gaillard (78660)
- Saint-Arnoult-en-Yvelines (78730)
- Breuillet (91650)
- Monnerville (91930)
- Vaugrigneuse (91640)
- Boissy-sous-Saint-Yon (91790)
- Ablis (78660)
- Sonchamp (78120)
- Bruyères-le-Châtel (91680)
- Lardy (91510)
- Briis-sous-Forges (91640)
- -
Quel constructeur choisir proche de La Forêt-le-Roi ?
Trouvez un professionnel afin de faire construire votre maison individuelle dans la région, consultez l'annuaire des "constructeurs de maisons Ile-de-france"