-
Annonces
- Immobilier
- Immobilier Neuf
- Construction maison
- Midi-Pyrénées
- Tarn-et-Garonne (82)
- Labastide-Saint-Pierre (82370)
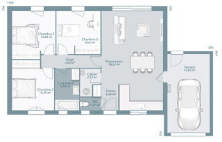
Maison neuve Labastide-Saint-Pierre (82370)
Comment acheter une maison à Labastide-Saint-Pierre ?
Avez-vous pensé à l'immobilier ancien ? Découvrez nos annonces de maisons à vendre à Labastide-Saint-Pierre.
Le top villes pour votre recherche immobilière
- Campsas (82370)
- Bressols (82710)
- Saint-Nauphary (82370)
- Montbartier (82700)
- Fronton (31620)
- Pompignan (82170)
- Grisolles (82170)
- Montech (82700)
- Léojac (82230)
- Finhan (82700)
- Montbeton (82290)
- Bouloc (31620)
- Saint-Rustice (31620)
- Castelnau-d'Estrétefonds (31620)
- Villematier (31340)
- Ondes (31330)
- Savenès (82600)
- Montdurausse (81630)
- Villeneuve-lès-Bouloc (31620)
- Aucamville (82600)
Quel constructeur choisir proche de Labastide-Saint-Pierre ?
Trouvez un professionnel afin de faire construire votre maison individuelle dans la région, consultez l'annuaire des "constructeurs de maisons Midi-Pyrenées"