-
Annonces
- Immobilier
- Immobilier Neuf
- Construction maison
- Île-de-France
- Seine-et-Marne (77)
- Maison-Rouge (77370)
Maison neuve Maison-Rouge (77370)
8 annonces "maisons à construire"
Maison 100 m2 Maison-Rouge (77)
Maison de 6 pièces (100 m²) à vendre à Maison-Rouge
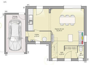
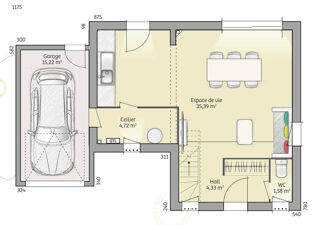
Paris à 1 h (Transilien P, Sainte-Colombe Septveilles) - À découvrir à Maison-Rouge (77370) : maison neuve 6 pièces en vente. 2 niveaux, surface de 100 m² sur 752 m² de terrain. Elle dispose de quatre chambres, d'une cuisine et d'une salle de bains.
À proximité : gares (Sainte-Colombe Septveilles et Longueville), écoles, tennis, boulangerie et épicerie.
Cette maison de 6 pièces est à vendre pour la somme de 251 820 €.
N'hésitez pas à prendre contact avec Cedric YAHIAOUI () pour toute information sur la maison. Faites de vos projets immobiliers une réalité avec Maisons France Confort Magny-le-Hongre.
Annonce proposée par un Agent Commercial Partenaire.
Nos offres de terrains sont proposées en collaboration avec nos partenaires fonciers pour des maisons dans le cadre de la loi du 10/12/1990, selon disponibilité.
Surface habitable : 100m2.
Nombre de pièces : 6.
Nombre de chambres : 4.
Prix terrain seul : 71820 euros.
Terrain proposé par un partenaire foncier selon disponibilités et autorisation de publicité au prix de 71 820 €. Hors droit d'enregistrement et frais de notaire. Terrain + Maison proposés au prix de 251 820 € (Hors branchements et raccordements, papiers peints, peintures, revêtement de sol dans les chambres. Tarif modifiable sans préavis). Etiquette énergie : A. Différents modèles disponibles pour ce terrain. Assurances et garanties du constructeur (RC professionnelle, décennale, dommage ouvrage, garantie de remboursement de l'acompte, livraison à prix et délai convenu) : HEXAOM Services est enregistré auprès de l'ORIAS en tant que Courtier en financement, Niveau 1, sous le numéro 14001345.
MAISONS FRANCE CONFORT 11 rue de Courtalin 77700 Magny-le-Hongre
Référence : CY2436052_2
992785077215 1108103_1005119_3673911 Vente immobilier Maison Maison-Rouge (77370) Maison 6 pièce(s) 100 m²
1 980 annonces
23/03/2026
Maison 105 m2 Maison-Rouge (77)
Maison T6 (105 m²) à vendre à Maison-Rouge
Paris à 1 h (Transilien P, Sainte-Colombe Septveilles) - À Maison-Rouge (77370), maison neuve en vente de 6 pièces, 105 m² de surface et 752 m² de terrain. Conçue de plain-pied, elle propose quatre chambres, une cuisine et deux salles de bains.
Proche gares (Sainte-Colombe Septveilles et Longueville), écoles, tennis, boulangerie et épicerie.
Le prix de vente de cette maison de 6 pièces est de 261 820 €.
N'hésitez pas à prendre contact avec notre agence (Cedric YAHIAOUI : ) pour toute information sur la maison de plain-pied, sur les démarches à suivre ou sur les modalités de vente. Maisons France Confort Magny-le-Hongre est là pour vous accompagner à toutes les étapes de votre projet.
Annonce proposée par un Agent Commercial Partenaire.
Nos offres de terrains sont proposées en collaboration avec nos partenaires fonciers pour des maisons dans le cadre de la loi du 10/12/1990, selon disponibilité.
Surface habitable : 105m2.
Nombre de pièces : 6.
Nombre de chambres : 4.
Prix terrain seul : 71820 euros.
Terrain proposé par un partenaire foncier selon disponibilités et autorisation de publicité au prix de 71 820 €. Hors droit d'enregistrement et frais de notaire. Terrain + Maison proposés au prix de 261 820 € (Hors branchements et raccordements, papiers peints, peintures, revêtement de sol dans les chambres. Tarif modifiable sans préavis). Etiquette énergie : A. Différents modèles disponibles pour ce terrain. Assurances et garanties du constructeur (RC professionnelle, décennale, dommage ouvrage, garantie de remboursement de l'acompte, livraison à prix et délai convenu) : HEXAOM Services est enregistré auprès de l'ORIAS en tant que Courtier en financement, Niveau 1, sous le numéro 14001345.
MAISONS FRANCE CONFORT 11 rue de Courtalin 77700 Magny-le-Hongre
Référence : CY2436052_3
992785077216 1108103_1005119_3673912 Vente immobilier Maison Maison-Rouge (77370) Maison 6 pièce(s) 105 m²
1 980 annonces
23/03/2026
Maison 90 m2 Maison-Rouge (77)
Maison-Rouge : maison de 5 pièces (90 m²) en vente
Paris à 1 h (Transilien P, Sainte-Colombe Septveilles) - Maison neuve 5 pièces en vente à Maison-Rouge (77370) avec 2 niveaux, une surface de 90 m² et de 752 m² de terrain. Son intérieur offre trois chambres, une cuisine et une salle de bains.
À proximité : gares (Sainte-Colombe Septveilles et Longueville), écoles, tennis, boulangerie et épicerie.
Cette maison de 5 pièces est proposée à l'achat pour 231 820 €.
Prenez contact avec notre agence (Cedric YAHIAOUI : ) pour toute information sur la maison. Maisons France Confort Magny-le-Hongre vous accompagne à toutes les étapes de votre projet et dans tous vos projets immobiliers.
Annonce proposée par un Agent Commercial Partenaire.
Nos offres de terrains sont proposées en collaboration avec nos partenaires fonciers pour des maisons dans le cadre de la loi du 10/12/1990, selon disponibilité.
Surface habitable : 90m2.
Nombre de pièces : 5.
Nombre de chambres : 3.
Prix terrain seul : 71820 euros.
Terrain proposé par un partenaire foncier selon disponibilités et autorisation de publicité au prix de 71 820 €. Hors droit d'enregistrement et frais de notaire. Terrain + Maison proposés au prix de 231 820 € (Hors branchements et raccordements, papiers peints, peintures, revêtement de sol dans les chambres. Tarif modifiable sans préavis). Etiquette énergie : A. Différents modèles disponibles pour ce terrain. Assurances et garanties du constructeur (RC professionnelle, décennale, dommage ouvrage, garantie de remboursement de l'acompte, livraison à prix et délai convenu) : HEXAOM Services est enregistré auprès de l'ORIAS en tant que Courtier en financement, Niveau 1, sous le numéro 14001345.
MAISONS FRANCE CONFORT 11 rue de Courtalin 77700 Magny-le-Hongre
Référence : CY2436052_1
992785077214 1108103_1005119_3673910 Vente immobilier Maison Maison-Rouge (77370) Maison 5 pièce(s) 90 m²
1 980 annonces
23/03/2026
Maison 160 m2 Maison-Rouge (77)
Maison-Rouge : maison de 7 pièces (160 m²) à vendre
Paris à 1 h (Transilien P, Sainte-Colombe Septveilles) - À Maison-Rouge (77370), maison neuve en vente de 7 pièces, 2 niveaux, 160 m² de surface et 752 m² de terrain. Elle compte cinq chambres, une cuisine et deux salles de bains.
À proximité : gares (Sainte-Colombe Septveilles et Longueville), écoles, tennis, boulangerie et épicerie.
Le prix de vente de cette maison de 7 pièces est de 351 820 €.
Contactez Cedric YAHIAOUI (tél : ) pour toute question sur la maison. Maisons France Confort Magny-le-Hongre vous accompagne dans toutes vos démarches et à toutes les étapes de l'achat.
Annonce proposée par un Agent Commercial Partenaire.
Nos offres de terrains sont proposées en collaboration avec nos partenaires fonciers pour des maisons dans le cadre de la loi du 10/12/1990, selon disponibilité.
Surface habitable : 160m2.
Nombre de pièces : 7.
Nombre de chambres : 5.
Prix terrain seul : 71820 euros.
Terrain proposé par un partenaire foncier selon disponibilités et autorisation de publicité au prix de 71 820 €. Hors droit d'enregistrement et frais de notaire. Terrain + Maison proposés au prix de 351 820 € (Hors branchements et raccordements, papiers peints, peintures, revêtement de sol dans les chambres. Tarif modifiable sans préavis). Etiquette énergie : A. Différents modèles disponibles pour ce terrain. Assurances et garanties du constructeur (RC professionnelle, décennale, dommage ouvrage, garantie de remboursement de l'acompte, livraison à prix et délai convenu) : HEXAOM Services est enregistré auprès de l'ORIAS en tant que Courtier en financement, Niveau 1, sous le numéro 14001345.
MAISONS FRANCE CONFORT 11 rue de Courtalin 77700 Magny-le-Hongre
Référence : CY2436052_4
992785077217 1108103_1005119_3673913 Vente immobilier Maison Maison-Rouge (77370) Maison 7 pièce(s) 160 m²
1 980 annonces
23/03/2026
Maison 160 m2 Maison-Rouge (77)
Maison-Rouge : maison de 7 pièces (160 m²) en vente
Paris à 1 h (Transilien P, Sainte-Colombe Septveilles) - À Maison-Rouge (77370), maison neuve à vendre de 7 pièces, 2 niveaux, 160 m² et 945 m² de terrain. Son intérieur comporte cinq chambres, une cuisine et deux salles de bains.
À dix minutes : gares (Sainte-Colombe Septveilles et Longueville), écoles, tennis, boulangerie et épicerie.
Le prix de vente de cette maison de 7 pièces est de 339 000 €.
Contactez notre agence (Cedric YAHIAOUI : ) pour plus d'informations sur la maison ou sur les modalités de vente.
Annonce proposée par un Agent Commercial Partenaire.
Nos offres de terrains sont proposées en collaboration avec nos partenaires fonciers pour des maisons dans le cadre de la loi du 10/12/1990, selon disponibilité.
Surface habitable : 160m2.
Nombre de pièces : 7.
Nombre de chambres : 5.
Prix terrain seul : 59000 euros.
Terrain proposé par un partenaire foncier selon disponibilités et autorisation de publicité au prix de 59 000 €. Hors droit d'enregistrement et frais de notaire. Terrain + Maison proposés au prix de 339 000 € (Hors branchements et raccordements, papiers peints, peintures, revêtement de sol dans les chambres. Tarif modifiable sans préavis). Etiquette énergie : A. Différents modèles disponibles pour ce terrain. Assurances et garanties du constructeur (RC professionnelle, décennale, dommage ouvrage, garantie de remboursement de l'acompte, livraison à prix et délai convenu) : HEXAOM Services est enregistré auprès de l'ORIAS en tant que Courtier en financement, Niveau 1, sous le numéro 14001345.
MAISONS FRANCE CONFORT 11 rue de Courtalin 77700 Magny-le-Hongre
Référence : CY2430237_4
992784976549 1108103_1005119_3667811 Vente immobilier Maison Maison-Rouge (77370) Maison 7 pièce(s) 160 m²
1 980 annonces
17/03/2026
Maison 100 m2 Maison-Rouge (77)
Maison-Rouge : maison de 6 pièces (100 m²) à vendre
Paris à 1 h (Transilien P, Sainte-Colombe Septveilles) - À vendre à Maison-Rouge (77370) : maison neuve 6 pièces de 100 m² et de 945 m² de terrain. Son intérieur compte quatre chambres, une cuisine et une salle de bains.
Proche gares (Sainte-Colombe Septveilles et Longueville), écoles, tennis, boulangerie et épicerie.
Le prix de vente de cette maison de 6 pièces est de 239 000 €.
Prenez contact avec notre agence (Cedric YAHIAOUI : ) pour tout renseignement sur la maison ou sur les démarches à suivre. Maisons France Confort Magny-le-Hongre est là pour vous accompagner dans tous vos projets immobiliers.
Annonce proposée par un Agent Commercial Partenaire.
Nos offres de terrains sont proposées en collaboration avec nos partenaires fonciers pour des maisons dans le cadre de la loi du 10/12/1990, selon disponibilité.
Surface habitable : 100m2.
Nombre de pièces : 6.
Nombre de chambres : 4.
Prix terrain seul : 59000 euros.
Terrain proposé par un partenaire foncier selon disponibilités et autorisation de publicité au prix de 59 000 €. Hors droit d'enregistrement et frais de notaire. Terrain + Maison proposés au prix de 239 000 € (Hors branchements et raccordements, papiers peints, peintures, revêtement de sol dans les chambres. Tarif modifiable sans préavis). Etiquette énergie : A. Différents modèles disponibles pour ce terrain. Assurances et garanties du constructeur (RC professionnelle, décennale, dommage ouvrage, garantie de remboursement de l'acompte, livraison à prix et délai convenu) : HEXAOM Services est enregistré auprès de l'ORIAS en tant que Courtier en financement, Niveau 1, sous le numéro 14001345.
MAISONS FRANCE CONFORT 11 rue de Courtalin 77700 Magny-le-Hongre
Référence : CY2430237_2
992784976547 1108103_1005119_3667809 Vente immobilier Maison Maison-Rouge (77370) Maison 6 pièce(s) 100 m²
1 980 annonces
17/03/2026
Maison 105 m2 Maison-Rouge (77)
VENTE : maison de 6 pièces (105 m²) à Maison-Rouge
Paris à 1 h (Transilien P, Sainte-Colombe Septveilles) - Maison neuve 6 pièces à vendre à Maison-Rouge (77370) avec une surface de 105 m² et de 945 m² de terrain. Son intérieur dispose de quatre chambres, d'une cuisine et de deux salles de bains.
À proximité : gares (Sainte-Colombe Septveilles et Longueville), écoles, tennis, boulangerie et épicerie.
Le prix de vente de cette maison de 6 pièces est de 249 000 €.
Contactez Cedric YAHIAOUI (tél : ) pour tout renseignement sur la maison. Donnez vie à vos projets immobiliers avec Maisons France Confort Magny-le-Hongre.
Annonce proposée par un Agent Commercial Partenaire.
Nos offres de terrains sont proposées en collaboration avec nos partenaires fonciers pour des maisons dans le cadre de la loi du 10/12/1990, selon disponibilité.
Surface habitable : 105m2.
Nombre de pièces : 6.
Nombre de chambres : 4.
Prix terrain seul : 59000 euros.
Terrain proposé par un partenaire foncier selon disponibilités et autorisation de publicité au prix de 59 000 €. Hors droit d'enregistrement et frais de notaire. Terrain + Maison proposés au prix de 249 000 € (Hors branchements et raccordements, papiers peints, peintures, revêtement de sol dans les chambres. Tarif modifiable sans préavis). Etiquette énergie : A. Différents modèles disponibles pour ce terrain. Assurances et garanties du constructeur (RC professionnelle, décennale, dommage ouvrage, garantie de remboursement de l'acompte, livraison à prix et délai convenu) : HEXAOM Services est enregistré auprès de l'ORIAS en tant que Courtier en financement, Niveau 1, sous le numéro 14001345.
MAISONS FRANCE CONFORT 11 rue de Courtalin 77700 Magny-le-Hongre
Référence : CY2430237_3
992784976548 1108103_1005119_3667810 Vente immobilier Maison Maison-Rouge (77370) Maison 6 pièce(s) 105 m²
1 980 annonces
17/03/2026
Maison 90 m2 Maison-Rouge (77)
VENTE d'une maison F5 (90 m²) à Maison-Rouge
Paris à 1 h (Transilien P, Sainte-Colombe Septveilles) - À découvrir à Maison-Rouge (77370) : maison neuve 5 pièces à vendre. 2 niveaux, surface de 90 m² sur 945 m² de terrain. Elle compte trois chambres, une cuisine et une salle de bains.
À proximité : gares (Sainte-Colombe Septveilles et Longueville), écoles, tennis, boulangerie et épicerie.
Le prix de vente de cette maison de 5 pièces est de 219 000 €.
Contactez Cedric YAHIAOUI (tél : ) pour obtenir de plus amples informations sur la maison, sur les démarches à suivre ou sur les modalités de vente. Donnez vie à vos projets immobiliers avec Maisons France Confort Magny-le-Hongre.
Annonce proposée par un Agent Commercial Partenaire.
Nos offres de terrains sont proposées en collaboration avec nos partenaires fonciers pour des maisons dans le cadre de la loi du 10/12/1990, selon disponibilité.
Surface habitable : 90m2.
Nombre de pièces : 5.
Nombre de chambres : 3.
Prix terrain seul : 59000 euros.
Terrain proposé par un partenaire foncier selon disponibilités et autorisation de publicité au prix de 59 000 €. Hors droit d'enregistrement et frais de notaire. Terrain + Maison proposés au prix de 219 000 € (Hors branchements et raccordements, papiers peints, peintures, revêtement de sol dans les chambres. Tarif modifiable sans préavis). Etiquette énergie : A. Différents modèles disponibles pour ce terrain. Assurances et garanties du constructeur (RC professionnelle, décennale, dommage ouvrage, garantie de remboursement de l'acompte, livraison à prix et délai convenu) : HEXAOM Services est enregistré auprès de l'ORIAS en tant que Courtier en financement, Niveau 1, sous le numéro 14001345.
MAISONS FRANCE CONFORT 11 rue de Courtalin 77700 Magny-le-Hongre
Référence : CY2430237_1
992784976546 1108103_1005119_3667808 Vente immobilier Maison Maison-Rouge (77370) Maison 5 pièce(s) 90 m²
1 980 annonces
17/03/2026
Activez une alerte mail pour recevoir automatiquement les nouvelles annonces :
Maison neuve Maison-Rouge (77370)
Comment acheter une maison à Maison-Rouge ?
Avez-vous pensé à l'immobilier ancien ? Découvrez nos annonces de maisons à vendre à Maison-Rouge.
Le top villes pour votre recherche immobilière
- Rampillon (77370)
- Jutigny (77650)
- Donnemarie-Dontilly (77520)
- Nangis (77370)
- Provins (77160)
- Soisy-Bouy (77650)
- Montigny-Lencoup (77520)
- Sourdun (77171)
- Vaudoy-en-Brie (77141)
- Bray-sur-Seine (77480)
- Bazoches-lès-Bray (77118)
- La Chapelle-Gauthier (77720)
- Salins (77148)
- Rozay-en-Brie (77540)
- Mormant (77720)
- Marolles-sur-Seine (77130)
- Misy-sur-Yonne (77130)
- Vinneuf (89140)
- Pamfou (77830)
- Montereau-Fault-Yonne (77130)
- -
Quel constructeur choisir proche de Maison-Rouge ?
Trouvez un professionnel afin de faire construire votre maison individuelle dans la région, consultez l'annuaire des "constructeurs de maisons Ile-de-france"