-
Annonces
- Immobilier
- Immobilier Neuf
- Construction maison
- Haute-Normandie
- Seine-Maritime (76)
- Mesnil-Raoul (76520)
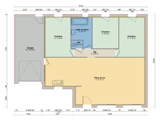
Maison neuve Mesnil-Raoul (76520)
Le top villes pour votre recherche immobilière
- Fresne-le-Plan (76520)
- Gouy (76520)
- Bois-l'Évêque (76160)
- Radepont (27380)
- Charleval (27380)
- Romilly-sur-Andelle (27610)
- Martainville-Épreville (76116)
- Saint-Jacques-sur-Darnétal (76160)
- Franqueville-Saint-Pierre (76520)
- Saint-Aubin-Épinay (76160)
- Perruel (27910)
- Ymare (76520)
- Servaville-Salmonville (76116)
- Saint-Aubin-Celloville (76520)
- Pîtres (27590)
- Amfreville-la-Mi-Voie (76920)
- Le Manoir (27460)
- Bonsecours (76240)
- Saint-Martin-du-Vivier (76160)
- Alizay (27460)
Quel constructeur choisir proche de Mesnil-Raoul ?
Trouvez un professionnel afin de faire construire votre maison individuelle dans la région, consultez l'annuaire des "constructeurs de maisons Haute-Normandie"