-
Annonces
- Immobilier
- Immobilier Neuf
- Construction maison
- Bretagne
- Finistère (29)
- Plouégat-Guérand (29620)
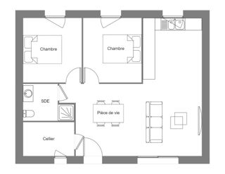
Maison neuve Plouégat-Guérand (29620)
Le top villes pour votre recherche immobilière
- Plouigneau (29610)
- Taulé (29670)
- Carantec (29660)
- Henvic (29670)
- Saint-Pol-de-Léon (29250)
- Roscoff (29680)
- Santec (29250)
- Plougoulm (29250)
- Cléder (29233)
- Bodilis (29400)
- Plouédern (29800)
- Landerneau (29800)
- Ploudaniel (29260)
- Lesneven (29260)
- Le Folgoët (29260)
- Paimpol (22500)
- Châtelaudren-Plouagat (22170)
- Ploubazlanec (22620)
- La Forest-Landerneau (29800)
- Le Faou (29590)
Quel constructeur choisir proche de Plouégat-Guérand ?
Trouvez un professionnel afin de faire construire votre maison individuelle dans la région, consultez l'annuaire des "constructeurs de maisons Bretagne"