-
Annonces
- Immobilier
- Immobilier Neuf
- Construction maison
- Languedoc-Roussillon
- Hérault (34)
- Puilacher (34230)
Maison neuve Puilacher (34230)
15 annonces "maisons à construire"
Maison 82 m2 Puilacher (34)
Vente d'une maison t4 (82 m²) à puilacher idéalement située - maison neuve 4 pièces en vente à puilacher (34230) avec 2 niveaux, une surface de 82 m² sur un terrain de 1 680 m². son intérieur comporte trois chambres, une cuisine et une salle de...
155 annonces
10/02/2026
Maison 95 m2 Puilacher (34)
Puilacher : maison t4 (95 m²) en vente idéalement située - À vendre à puilacher (34230) : maison neuve 4 pièces de 95 m² sur un terrain de 1 680 m². son intérieur inclut trois chambres, une cuisine et deux salles de bains. À dix minutes :...
155 annonces
10/02/2026
Maison 110 m2 Puilacher (34)
Vente d'une maison t5 (110 m²) à puilacher idéalement située - À découvrir à puilacher (34230) : maison neuve 5 pièces en vente, 110 m² sur 1 680 m² de terrain. conçue de plain-pied, elle se divise en quatre chambres, une cuisine et deux salles...
155 annonces
10/02/2026
Maison 81 m2 Puilacher (34)
Puilacher : maison de 4 pièces (81 m²) en vente idéalement située - maison neuve 4 pièces en vente à puilacher (34230) avec une surface de 81 m² et de 1 680 m² de terrain. son intérieur comporte trois chambres, une cuisine et une salle de bains....
155 annonces
10/02/2026
Maison 100 m2 Puilacher (34)
Vente d'une maison f4 (100 m²) à puilacher idéalement située - maison neuve 4 pièces en vente à puilacher (34230) avec une surface de 100 m² et de 1 680 m² de terrain. conçue de plain-pied, elle se divise en trois chambres, une cuisine et deux...
155 annonces
10/02/2026
Maison 101 m2 Puilacher (34)
Puilacher : maison f5 (101 m²) à vendre idéalement située - À puilacher (34230), maison neuve à vendre de 5 pièces, 101 m² de surface et 500 m² de terrain. conçue de plain-pied, elle dispose de quatre chambres, d'une cuisine et d'une salle de...
277 annonces
09/02/2026
Maison 96 m2 Puilacher (34)
Puilacher : maison de 5 pièces (96 m²) à vendre idéalement située - À puilacher (34230), maison neuve en vente de 5 pièces, 2 niveaux, 96 m² et 500 m² de terrain. elle propose quatre chambres, une cuisine et une salle de bains. À dix minutes :...
277 annonces
09/02/2026
Maison 81 m2 Puilacher (34)
Vente : maison de 4 pièces (81 m²) à puilacher idéalement située - À découvrir à puilacher (34230) : maison neuve 4 pièces à vendre, 81 m² de surface sur 500 m² de terrain. elle comporte trois chambres, une cuisine et une salle de bains. proche...
277 annonces
09/02/2026
Maison 78 m2 Puilacher (34)
Maison de 4 pièces (78 m²) à vendre à puilacher idéalement située - À vendre à puilacher (34230) : maison neuve 4 pièces de 78 m² et de 500 m² de terrain. elle dispose de trois chambres, d'une cuisine et d'une salle de bains. proche bibliothèque...
277 annonces
09/02/2026
Maison 98 m2 Puilacher (34)
Nos architectes ont conçu ce modèle pour vous. cette maison résolument contemporaine, saura vous séduire par son architecture innovante et sa pergola bioclimatique qui lui donneront un design unique. elle possède deux espaces bien distincts avec...
758 annonces
05/02/2026
Maison 138 m2 Puilacher (34)
Pour vous, nous avons créé l'architecture de demain. cette villa est à la pointe de l'évolution de la maison individuelle. le modèle cosmos est composé au rez-de-chaussée, d'un hall d'entrée avec wc et placard donnant dans un bel et lumineux...
758 annonces
05/02/2026
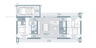
Maison 139 m2 Puilacher (34)
Oc résidences, constructeur de maisons individuelles depuis 1983, vous propose une maison neuve à faire construire en occitanie. cette maison vous offre au rez-de-chaussée un espace de vie de 51m² donnant sur une terrasse couverte, un bureau et...
758 annonces
05/02/2026
Maison 112 m2 Puilacher (34)
Découvrez les charmes de la libeccio. cette belle maison de plain-pied, qui saura vous séduire par son architecture en forme de l, son look tendance et son aménagement intérieur. son espace de vie traversant et lumineux de 48 m² vous offre un...
758 annonces
05/02/2026
Maison 162 m2 Puilacher (34)
Entrez dans la villa etoile, belle, design, lumineuse et sublimée par ses grands espaces et son aménagement intérieur unique. ses façades sont rythmées et déstructurées avec de beaux volumes géométriques. l'etoile, c'est 161 m² d'intérieur que...
758 annonces
05/02/2026
Maison 99 m2 Puilacher (34)
La point du jour 98 m² est le plain-pied idéal pour toute la famille. la villa se compose d'un vaste et lumineux salon/séjour doté d'une grande baie vitrée en 3 mètres de large. son cellier de plus de 5m² améliorera votre confort et votre...
758 annonces
05/02/2026
Comment acheter une maison à Puilacher ?
Avez-vous pensé à l'immobilier ancien ? Découvrez nos annonces de maisons à vendre à Puilacher.
Le top villes pour votre recherche immobilière
- Plaissan (34230)
- Saint-Pargoire (34230)
- Vendémian (34230)
- Aspiran (34800)
- Paulhan (34230)
- Popian (34230)
- Saint-Bauzille-de-la-Sylve (34230)
- Clermont-l'Hérault (34800)
- Péret (34800)
- Saint-André-de-Sangonis (34725)
- Ceyras (34800)
- Montagnac (34530)
- Lézignan-la-Cèbe (34120)
- Villeveyrac (34560)
- Canet (34800)
- Brignac (34800)
- Pézenas (34120)
- Aniane (34150)
- Neffiès (34320)
- Saint-Jean-de-Fos (34150)
- -
Quel constructeur choisir proche de Puilacher ?
Trouvez un professionnel afin de faire construire votre maison individuelle dans la région, consultez l'annuaire des "constructeurs de maisons Languedoc-Roussillon"