-
Annonces
- Immobilier
- Immobilier Neuf
- Construction maison
- Haute-Normandie
- Eure (27)
- Saint-Étienne-sous-Bailleul (27920)
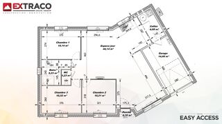
Maison neuve Saint-Étienne-sous-Bailleul (27920)
Le top villes pour votre recherche immobilière
- Saint-Marcel (27950)
- Port-Mort (27940)
- Saint-Aubin-sur-Gaillon (27600)
- Gaillon (27600)
- Vernon (27200)
- Aubevoye (27940)
- Courcelles-sur-Seine (27940)
- Panilleuse (27510)
- Mézières-en-Vexin (27510)
- Villers-sur-le-Roule (27940)
- Bouafles (27700)
- Vieux-Villez (27600)
- Ménilles (27120)
- Heubécourt-Haricourt (27630)
- Jouy-sur-Eure (27120)
- Pacy-sur-Eure (27120)
- Limetz-Villez (78270)
- Ailly (27600)
- Cuverville (27700)
- Les Andelys (27700)
Quel constructeur choisir proche de Saint-Étienne-sous-Bailleul ?
Trouvez un professionnel afin de faire construire votre maison individuelle dans la région, consultez l'annuaire des "constructeurs de maisons Haute-Normandie"