-
Annonces
- Immobilier
- Immobilier Neuf
- Construction maison
- Aquitaine
- Lot-et-Garonne (47)
- Saint-Jean-de-Duras (47120)
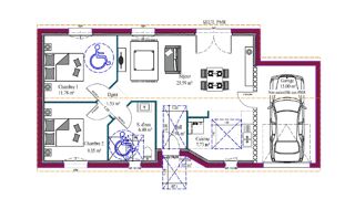
Maison neuve Saint-Jean-de-Duras (47120)
Le top villes pour votre recherche immobilière
- Saint-Sernin (47120)
- Duras (47120)
- Lévignac-de-Guyenne (47120)
- Flaugeac (24240)
- Pineuilh (33220)
- Dieulivol (33580)
- Gardonne (24680)
- Saint-Pierre-d'Eyraud (24130)
- Ribagnac (24240)
- Lamonzie-Saint-Martin (24680)
- Saint-Laurent-des-Vignes (24100)
- Prigonrieux (24130)
- Puymiclan (47350)
- Virazeil (47200)
- Bergerac (24100)
- Beaupuy (47200)
- Lunas (24130)
- La Force (24130)
- Marmande (47200)
- Sainte-Bazeille (47180)
Quel constructeur choisir proche de Saint-Jean-de-Duras ?
Trouvez un professionnel afin de faire construire votre maison individuelle dans la région, consultez l'annuaire des "constructeurs de maisons Aquitaine"