-
Annonces
- Immobilier
- Immobilier Neuf
- Construction maison
- Midi-Pyrénées
- Haute-Garonne (31)
- Vieillevigne (31290)
Maison neuve Vieillevigne (31290)
14 annonces "maisons à construire"
Maison 90 m2 Vieillevigne (31)
Un équilibre parfait entre confort et prix avec cette offre exclusive pour nos clients mfc ! terrain viabilisé de 405 m² à seulement 64 000 €. profitez du calme de vieillevigne et de la proximité des axes autoroutiers (a61/a66 à 10 min)....
251 annonces
02/12/2025
Maison 110 m2 Vieillevigne (31)
Terrain viabilisé de 405 m² à prix incroyablement bas (64 000 €) à vieillevigne ! offre réservée à la clientèle maisons france confort pour ce projet en forme de l, avec suite parentale en rdc. École et commodités sur place, toulouse à 25...
251 annonces
02/12/2025
Maison 145 m2 Vieillevigne (31)
Projet d'exception (r+1, 5 ch.) sur un terrain viabilisé à 64 000 € ! offre exclusive pour nos clients maisons france confort. profitez d'une suite parentale en rdc et de prestations re2020 haut de gamme. tranquillité en lauragais, connexion...
251 annonces
02/12/2025
Maison 73 m2 Vieillevigne (31)
Votre projet clé en main sur un terrain viabilisé de 405 m² à prix exceptionnel (64 000 €) ! offre réservée aux clients maisons france confort pour concrétiser un projet de construction. vieillevigne, école sur place, accès express a61/a66...
251 annonces
02/12/2025
Maison 125 m2 Vieillevigne (31)
Terrain viabilisé à prix exceptionnel (64 000 €) à vieillevigne ! cette offre, exclusive à la construction mfc, permet de loger votre grande famille dans un plain-pied de 5 chambres. accès rapide aux autoroutes, frais de notaire réduits. le...
251 annonces
02/12/2025
Maison 110 m2 Vieillevigne (31)
Conçue autour d'un volume à étage, cette belle maison familiale de 112 m² saura vous séduire par son architecture simple et soignée. cette villa est composée au rez-de-chaussée d'un grand espace de vie d'environ lumineux avec ses nombreuses...
550 annonces
26/11/2025
Maison 98 m2 Vieillevigne (31)
Nos architectes ont conçu ce modèle pour vous. cette maison résolument contemporaine, saura vous séduire par son architecture innovante et sa pergola bioclimatique qui lui donneront un design unique. elle possède deux espaces bien distincts avec...
550 annonces
26/11/2025
Maison 72 m2 Vieillevigne (31)
D'une architecture sobre et élégante, respectant les normes d'accessibilité cette maison est conçue de manière ingénieuse et fonctionnelle avec la particularité de pouvoir s'agrandir à moindre frais selon les besoins de la famille. ces volumes...
550 annonces
26/11/2025
Maison 122 m2 Vieillevigne (31)
La solaire vous assure des volumes généreux et permet de profiter pleinement de la lumière grâce à ses nombreuses ouvertures. moderne, cette villa vous donne de nombreuses possibilités en termes de disposition des pièces. sa pièce de vie centrale...
550 annonces
26/11/2025
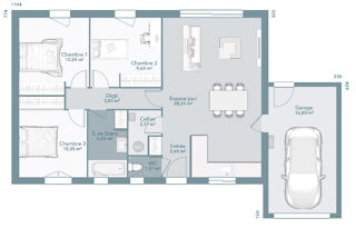
Maison 130 m2 Vieillevigne (31)
Vieillevigne terrain de 473 m² + maison de 130 m² + garage de 19 m². a partir de 323 192 € hors frais de notaire et hors frais annexes. votre maison est composée en rez de chaussée, d'une suite parentale de 20 m² avec wc, d'un grand dressing...
251 annonces
25/11/2025
Maison 50 m2 Vieillevigne (31)
Vieillevigne terrain de 473 m² + maison de 50 m² + garage de 16,50 m² a partir de 196 907 € hors frais de notaire et hors frais annexes. votre maison ingénieusement agencée, idéale pour un confort optimal. une pièce de vie lumineuse avec...
251 annonces
25/11/2025
Maison 110 m2 Vieillevigne (31)
Vieillevigne terrain de 473 m² + villa de 110 m² + garage de 15 m² + terrasse 23 m² a partir de 279 562 € hors frais de notaire et hors frais annexes. votre villa de 110 m² habitables avec salon-séjour traversant et cuisine ouverte + 1 garage...
251 annonces
25/11/2025
Maison 95 m2 Vieillevigne (31)
Vieillevigne terrain de 473 m² + maison de 95 m² + garage de 16 m² a partir de 255 242 € hors frais de notaire et hors frais annexes. votre maison conçue de manière ingénieuse, fonctionnelle et adaptable. salon-séjour traversant et lumineux....
251 annonces
25/11/2025
Maison 84 m2 Vieillevigne (31)
Vieillevigne terrain de 473 m² + maison de 84 m² + garage de 14 m² a partir de 239 035 € hors frais de notaire et hors frais annexes. faire le choix d'une maison fonctionnelle et optimisée. une grande pièce de vie de 38 m², un cellier, 2...
251 annonces
25/11/2025
Le top villes pour votre recherche immobilière
- Villenouvelle (31290)
- Lagarde (31290)
- Lux (31290)
- Villefranche-de-Lauragais (31290)
- Gardouch (31290)
- Avignonet-Lauragais (31290)
- Labastide-Beauvoir (31450)
- Nailloux (31560)
- Baziège (31450)
- Calmont (31560)
- Saint-Léon (31560)
- Labastide-d'Anjou (11320)
- Airoux (11320)
- Maureville (31460)
- Salles-sur-l'Hers (11410)
- Saint-Félix-Lauragais (31540)
- Montgiscard (31450)
- Auriac-sur-Vendinelle (31460)
- Donneville (31450)
- Saint-Julia (31540)
- -
Quel constructeur choisir proche de Vieillevigne ?
Trouvez un professionnel afin de faire construire votre maison individuelle dans la région, consultez l'annuaire des "constructeurs de maisons Midi-Pyrenées"