Lyon (69008)
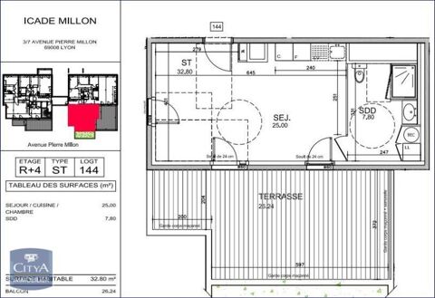
A louer // appartement t3 // 3 avenue pierre millon 69008 lyon // garage indissociable 75€ en supplement citya vendome lumière vous propose à la location à deux de 3 minutes à pied du métro ligne d, arrêt mermoz pinel, dans une belle résidence...
81 annonces
05/03/2026
A louer // appartement t3 // 3 avenue pierre millon 69008 lyon /// garage indissociable 70€ supplementaire citya vendôme lumière vous propose à la location à deux de 3 minutes à pied du métro ligne d, arrêt mermoz pinel, dans une belle résidence...
03/03/2026
Chambre meublée dans colocation – 600 € / mois tout compris dans une colocation de trois chambres, je mets en location une chambre meublée tout équipée (rangement, lit, bureau, étagères, couette). entièrement refait à neuf en 2022, l'appartement...
10/02/2026
Le logement jouit d'une bonne isolation et un bon confort, climatisation, raccordé à internet . au premier étage d'une villa avec accès par digicode. impasse calme dans un quartier résidentiel pavillonnaire. aux pieds de l'arrêt de tram , métro...
11/01/2026
Chambre de 80 m2 à louer sur lyon nous avons 2 chambres de disponible dans une collocation de 4 personnes. idéalement situé : le quartier: paul santy à lyon 8 entre les métros mermoz et parilly au 4e étage sur 5 sans ascenseur le montant 365...
489 annonces
09/03/2026
Création d'une alerte