- Annonces immobilières
- Vente
- Maison
- Maison terrain jardin
- Centre
- Indre-et-Loire (37)
- Sainte-Maure-de-Touraine
Achat de maisons avec terrain, jardin Sainte-Maure-de-Touraine - page 2
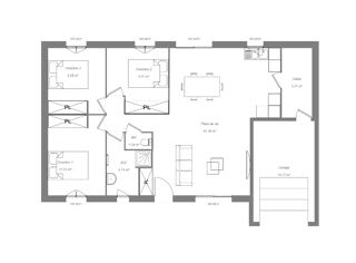
Maison 97 m2 Sainte-Maure-de-Touraine (37)
🏡 maison à construire - plain-pied en l de 97 m² + combles aménageables : laissez-vous séduire par cette maison de plain-pied de 97 m² en forme de l, pensée pour allier confort, fonctionnalité et lumière naturelle. les + : - grand espace...
657 annonces
02/12/2025
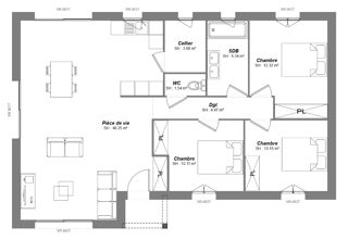
Maison 86 m2 Sainte-Maure-de-Touraine (37)
Maison de plain-pied avec 3 chambres et une salle d'eau avec wc séparé. cette maison dispose d'une entrée semi ouverte et fonctionnelle avec deux grand placards, puis d'un grand séjour ouvert de plus de 45 m² avec un accès au cellier au niveau de...
657 annonces
02/12/2025
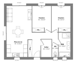
Maison 71 m2 Sainte-Maure-de-Touraine (37)
Belle maison de plain-pied d'une superficie totale de 71m². vous retrouverez dans cette jolie maison une pièce à vivre de 40m², un garage, un ensemble de 2 chambres, une salle d'eau ainsi d'un cellier et un wc. concernant les prestations...
133 annonces
01/12/2025
Maison 110 m2 Sainte-Maure-de-Touraine (37)
Jolie maison de type r+1 d'une superficie globale de 110m². au rez-de-chaussée, vous trouverez un garage spacieux, une belle pièce de vie ainsi qu'un cellier. a l'étage, vous aurez la possibilité de faire entre trois et quatre chambres selon vos...
133 annonces
01/12/2025
Maison 80 m2 Sainte-Maure-de-Touraine (37)
Belle maison de plain-pied d'une superficie totale de 82m². la disposition de cette maison permet d'opter pour un terrain avec une façade restreinte ainsi que s'adapter facilement aux exigences des terrains classés en bâtiments de france. vous...
133 annonces
01/12/2025
Maison 100 m2 Sainte-Maure-de-Touraine (37)
Découvrez cette maison à étage r+1, alliant élégance et fonctionnalité. au rez-de-chaussée, profitez d'une suite parentale confortable, idéale pour votre intimité. le grand séjour de 45 m² vous offre un espace convivial pour recevoir famille et...
657 annonces
27/11/2025
Maison 127 m2 Sainte-Maure-de-Touraine (37)
Offrez-vous une maison moderne et fonctionnelle à construire : surface de 127 m² : idéale pour toute la famille. rez-de-chaussée : suite parentale avec salle d'eau, garage attenant et belle pièce de vie spacieuse et lumineuse. À l'étage : 3...
657 annonces
27/11/2025
Maison 82 m2 Sainte-Maure-de-Touraine (37)
Maison t3 (82 m²) en vente à sainte-maure-de-touraine proche de joué-lès-tours - À découvrir à sainte-maure-de-touraine (37800) : maison neuve 3 pièces en vente. surface de 82 m² sur 520 m² de terrain. conçue de plain-pied, elle inclut trois...
586 annonces
25/11/2025
Maison 120 m2 Sainte-Maure-de-Touraine (37)
Loft 120 : l'harmonie du bois et de la lumière imaginez un espace de vie où la chaleur du bois se marie à la luminosité naturelle, créant une atmosphère de sérénité et de bien-être. le loft 120, avec ses 120 m² de plain-pied, est conçu pour vous...
586 annonces
24/11/2025
Maison 100 m2 Sainte-Maure-de-Touraine (37)
Vous rêvez d'une maison unique, conçue selon vos envies et vos besoins ? avec cid hexaom, votre constructeur sur-mesure, imaginez et réalisez la maison de vos rêves, à un prix accessible pour tous. pourquoi choisir cid hexaom ? conception...
586 annonces
24/11/2025
Maison 150 m2 Sainte-Maure-de-Touraine (37)
Vous rêvez d'une maison unique, conçue selon vos envies et vos besoins ? avec cid hexaom, votre constructeur sur-mesure, imaginez et réalisez la maison de vos rêves, à un prix accessible pour tous. pourquoi choisir cid hexaom ? conception...
586 annonces
24/11/2025
Maison 92 m2 Sainte-Maure-de-Touraine (37)
Cette magnifique maison à construire en l de 93m² offre un cadre de vie idéal. sa pièce de vie spacieuse de plus de 46m² bénéficie d'une triple exposition, garantissant une luminosité optimale tout au long de la journée. elle comprend également...
657 annonces
21/11/2025
Maison 85 m2 Sainte-Maure-de-Touraine (37)
Vente : maison de 4 pièces (85 m²) à sainte-maure-de-touraine maison 4 piÈces neuve - proche de jouÉ-lÈs-tours en vente : à quelques kilomètres de joué-lès-tours, nous vous présentons à sainte-maure-de-touraine (37800), cette maison de 4 pièces de...
657 annonces
21/11/2025
Maison 127 m2 Sainte-Maure-de-Touraine (37)
Offrez-vous une maison moderne et fonctionnelle à construire : surface de 127 m² : idéale pour toute la famille. rez-de-chaussée : suite parentale avec salle d'eau, garage attenant et belle pièce de vie spacieuse et lumineuse. À l'étage : 3...
657 annonces
03/12/2025
Maison 110 m2 Sainte-Maure-de-Touraine (37)
Devenez propriÉtaire de votre maison sur-mesure - opportunite a saisir découvrez cette demeure conçue et bâtie avec tout le savoir-faire des maisons de stéphanie, constructeur reconnu pour ses 30 années d'expérience et son exigence de qualité....
765 annonces
06/12/2025
Maison 70 m2 Sainte-Maure-de-Touraine (37)
Découvrez cette magnifique maison de 70m² habitables, conçue pour votre confort. elle comprend deux belles chambres lumineuses, idéales pour toute la famille. une grande pièce de vie de plus de 40m², un grand garage spacieux vous offre un espace...
657 annonces
21/11/2025
Maison 98 m2 Sainte-Maure-de-Touraine (37)
Vente : maison t4 (98 m²) à sainte-maure-de-touraine proche de joué-lès-tours - maison neuve 4 pièces à vendre à sainte-maure-de-touraine (37800) avec une surface de 98 m² et de 340 m² de terrain. son intérieur est composé de quatre chambres,...
586 annonces
20/11/2025
Maison 80 m2 Sainte-Maure-de-Touraine (37)
Maison de 3 pièces (80 m²) en vente à sainte-maure-de-touraine proche de joué-lès-tours - À découvrir à sainte-maure-de-touraine (37800) : maison neuve 3 pièces à vendre. surface de 80 m² et 340 m² de terrain. elle se divise en trois chambres,...
586 annonces
20/11/2025
Maison 90 m2 Sainte-Maure-de-Touraine (37)
Maison de 5 pièces (90 m²) en vente à sainte-maure-de-touraine proche de joué-lès-tours - maison neuve 5 pièces à vendre à sainte-maure-de-touraine (37800) avec une surface de 90 m² et de 340 m² de terrain. elle comporte trois chambres, une...
586 annonces
19/11/2025
Maison 105 m2 Sainte-Maure-de-Touraine (37)
Vente d'une maison de 5 pièces (105 m²) à sainte-maure-de-touraine proche de joué-lès-tours - À sainte-maure-de-touraine (37800), maison neuve en vente de 5 pièces, 105 m² de surface et 520 m² de terrain. conçue de plain-pied, elle propose trois...
586 annonces
19/11/2025
Maison 92 m2 Sainte-Maure-de-Touraine (37)
Vente : maison t5 (92 m²) à sainte-maure-de-touraine proche de joué-lès-tours - À découvrir à sainte-maure-de-touraine (37800) : maison neuve 5 pièces à vendre, 92 m² de surface sur 520 m² de terrain. son intérieur offre quatre chambres, une...
586 annonces
19/11/2025
Maison 81 m2 Sainte-Maure-de-Touraine (37)
Vente d'une maison f3 (81 m²) à sainte-maure-de-touraine proche de joué-lès-tours - À découvrir à sainte-maure-de-touraine (37800) : maison neuve 3 pièces en vente. surface de 81 m² et 340 m² de terrain. son intérieur dispose de trois chambres,...
586 annonces
19/11/2025
Maison 80 m2 Sainte-Maure-de-Touraine (37)
Vente : maison t4 (80 m²) à sainte-maure-de-touraine proche de joué-lès-tours - À sainte-maure-de-touraine (37800), maison neuve à vendre de 4 pièces, 80 m² de surface sur 340 m² de terrain. conçue de plain-pied, elle comporte trois chambres, une...
586 annonces
19/11/2025
Maison 130 m2 Sainte-Maure-de-Touraine (37)
Découvrez notre maison en forme de l, conçue pour allier confort et fonctionnalité. profitez d'une spacieuse suite parentale, idéale pour vous ressourcer, ainsi que de deux chambres supplémentaires. le grand séjour de 57 m² baigné de lumière est...
657 annonces
12/11/2025
Maison 110 m2 Sainte-Maure-de-Touraine (37)
Opportunite a saisir - devenez propriÉtaire de votre maison sur-mesure découvrez cette demeure conçue et bâtie avec tout le savoir-faire des maisons de stéphanie, constructeur reconnu pour ses 30 années d'expérience et son exigence de qualité....
765 annonces
11/11/2025
Maison 75 m2 Sainte-Maure-de-Touraine (37)
Opportunite a saisir - devenez propriÉtaire de votre maison sur-mesure découvrez cette demeure conçue et bâtie avec tout le savoir-faire des maisons de stéphanie, constructeur reconnu pour ses 30 années d'expérience et son exigence de qualité....
765 annonces
11/11/2025
Maison 162 m2 Sainte-Maure-de-Touraine (37)
Opportunite a saisir - devenez propriÉtaire de votre maison sur-mesure découvrez cette demeure conçue et bâtie avec tout le savoir-faire des maisons de stéphanie, constructeur reconnu pour ses 30 années d'expérience et son exigence de qualité....
765 annonces
11/11/2025
Maison 158 m2 Sainte-Maure-de-Touraine (37)
Opportunite a saisir - devenez propriÉtaire de votre maison sur-mesure découvrez cette demeure conçue et bâtie avec tout le savoir-faire des maisons de stéphanie, constructeur reconnu pour ses 30 années d'expérience et son exigence de qualité....
765 annonces
11/11/2025
Maison 90 m2 Sainte-Maure-de-Touraine (37)
Opportunite a saisir - devenez propriÉtaire de votre maison sur-mesure découvrez cette demeure conçue et bâtie avec tout le savoir-faire des maisons de stéphanie, constructeur reconnu pour ses 30 années d'expérience et son exigence de qualité....
765 annonces
11/11/2025
Maison 127 m2 Sainte-Maure-de-Touraine (37)
Offrez-vous une maison moderne et fonctionnelle à construire : surface de 127 m² : idéale pour toute la famille. rez-de-chaussée : suite parentale avec salle d'eau, garage attenant et belle pièce de vie spacieuse et lumineuse. À l'étage : 3...
657 annonces
08/11/2025
Maison 92 m2 Sainte-Maure-de-Touraine (37)
Cette magnifique maison à construire en l de 93m² offre un cadre de vie idéal. sa pièce de vie spacieuse de plus de 46m² bénéficie d'une triple exposition, garantissant une luminosité optimale tout au long de la journée. elle comprend également...
657 annonces
07/11/2025
Maison 109 m2 Sainte-Maure-de-Touraine (37)
Découvrez cette magnifique maison de plain-pied, idéale pour les familles, offrant un espace de vie généreux et des prestations de qualité. caractéristiques principales : - superficie : 110 m² - pièce de vie lumineuse de 59 m² avec double...
657 annonces
07/11/2025