Achat de maisons Saint-Jory
35 annonces
Maison 400 m2 Saint-Jory (31)
Votre agence l'adresse a le plaisir de vous proposer à la vente sur la commune de saint jory, dans un cadre calme et champêtre, cette belle toulousaine de 1889 d'environ 400m² dont 200m² au rez de chaussée sont déjà rénovés et habitables. la belle...
79 annonces
07/12/2025
Maison 123 m2 Saint-Jory (31)
Rare sur la commune de saint jory, venez découvrir cette maison d'environ sur une surface de près de 170m² avec un grand terrain de plus de 3200m² comprenant un petit étang. la maison de plain pied dispose d'un grand salon de 40m² donnant sur...
Delphine Gauthier
07/12/2025
Maison 95 m2 Saint-Jory (31)
Située dans un quartier calme et résidentiel, cette charmante maison t5 offre un cadre de vie idéal pour une famille en quête d'espace et de confort. dès l'entrée, vous serez séduit par ses volumes généreux et sa luminosité naturelle. conçue pour...
49 annonces
07/12/2025
Maison 110 m2 Saint-Jory (31)
Saint-jory maison t5 de 110m² environ sur une parcelle de 220 m² environ clôturée elle se compose au rdc: un salon avec coin cuisine aménagée et équipée de 41 m²environ donnant sur une véranda , une chambre spacieuse avec placards , une salle...
1 350 annonces
06/12/2025
Maison 115 m2 Saint-Jory (31)
Villa de plain-pied avec piscine et abri voiture à saint jory , proche commerces et gare. un grand séjour avec cuisine équipée et ouverte profite d'une cheminée et d'une climatisation réversible. on compte 4 chambres dont une parentale et une...
Ei - Sylvie Perez
06/12/2025
Maison 90 m2 Saint-Jory (31)
Je vous invite à venir découvrir cette agréable maison aux normes bbc, t4 située à 5 km de saint-jory, au calme et proche du centre ville de bruguières. le tout se compose au rdc d'1 entrée, 1 cuisine aménagée et ouverte sur 1 salon/séjour...
26 annonces
06/12/2025
Maison 193 m2 Saint-Jory (31)
Iad france - mathieu labro vous propose: À saint-jory, située à quelques minutes à pied des commodités, de la gare, des écoles et des cabinets médicaux. cette maison familiale construite en 2012 développe une surface habitable de 193 m² sur un...
Mathieu Labro
06/12/2025
Maison 156 m2 Saint-Jory (31)
En exclusivite, À saint-jory belle maison t6/t7 de 156m² environ de plain-pied, sans vis-à-vis, sur un terrain arboré et clôturé de 2055m². elle se compose d'une entrée, un grand salon/salle à manger avec cheminée donnant sur une véranda de 26m²...
Nathalie Botteon
06/12/2025
Maison 84 m2 Saint-Jory (31)
Vous cherchez un cadre de vie pratique, à taille humaine, où tout est accessible à pied ? ou vous cherchez un bien facile à louer, dans une commune très demandée par les jeunes familles ? cette maison de 84 m², en cœur de ville de saint-jory,...
Stéphanie Lagorio
05/12/2025
Maison 182 m2 Saint-Jory (31)
Découvrez cette superbe villa contemporaine de 182 m², nichée sur une parcelle entièrement clôturée d'environ 2000 m². spacieuse et lumineuse, elle offre des prestations de qualité, un cadre de vie idéal et une très faible consommation...
Maxime Caubet
05/12/2025
Maison 173 m2 Saint-Jory (31)
Iad france - corinne gabriel vous propose: cc ht numéro de mandat : 1862373 plus d'information : - câble tv 992782861661 1862373 vente immobilier maison saint-jory (31790) maison 7 pièce(s) 173 m²
Corinne Gabriel
05/12/2025
Maison 110 m2 Saint-Jory (31)
Villa t5 sur 2 niveaux avec grand terrain et garage, environnement calme. a découvrir sans tarder! construction traditionnelle , menuiserie récentes, volets roulants électriques et chauffage pompe à chaleur air/eau pour un confort optimal. au...
Ei - Sylvie Perez
02/12/2025
Maison 87 m2 Saint-Jory (31)
Jolie maison de 2018 aux dernières normes de construction. classée a et a sur les différents diagnostics techniques. séjour et cuisine ouverte offrant une pièce de vie de 34 m2 très lumineuse. cellier buanderie en parallele de la cuisine. 3...
Didier Belhon
30/11/2025
Maison 65 m2 Saint-Jory (31)
Iad france - cécilia rousseau vous propose: coup de coeur maison lumineuse de 2022 de type 3 de 64,72m2 évolutive, mitoyenne par le grand garage de 18,90m2 sur un jardin clôturé de 58,50m2. venez découvrir une entrée avec placard sur un...
Cécilia Rousseau
29/11/2025
Maison 64 m2 Saint-Jory (31)
Iad france - cécilia rousseau vous propose: maison lumineuse de 2022 de type 3 de 64m2, mitoyenne par le grand garage de 18,90m2 sur un jardin clôturé de 125m2. venez découvrir une entrée sur un séjour/cuisine semi équipée donnant sur un jardin...
Cécilia Rousseau
29/11/2025
Maison 109 m2 Saint-Jory (31)
Iad france - bérangère sedran vous propose: exclusivité ! située dans la commune de saint-jory, cette charmante maison familiale de 108.5 m² saura vous séduire par son design moderne et ses prestations de qualité. au coeur d'un lotissement...
Bérangère Sedran
29/11/2025
Propriété/château 390 m2 Saint-Jory (31)
Pour toute question ou demande d'information, pensez à noter et nous communiquer le numéro de référence lors de votre appel : 18816 pure place par homki a le plaisir de vous présenter cette propriété atypique de 390 m², située au calme d'une...
722 annonces
28/11/2025
Maison 138 m2 Saint-Jory (31)
Iad france - marie-cecile delmas vous propose: la présente annonce est soumise à la vente interactive. prix de départ : 312 000 € la vente interactive est un mode de vente immobilière digitale reposant sur un principe d'enchères en ligne. elle...
Marie-cecile Delmas
28/11/2025
Maison 92 m2 Saint-Jory (31)
A saint-jory, découvrez cette villa récente de 2019 d'une superficie de 91,7 m², nichée dans un environnement calme et proche de toutes les commodités. au rez-de-chaussée, la maison offre une suite parentale ainsi qu'un vaste séjour lumineux...
49 annonces
26/11/2025
Maison 95 m2 Saint-Jory (31)
À vendre – maison familiale à fort potentiel sur 2800 m² à saint-jory située dans un quartier calme et recherché de saint-jory, cette maison de 1972 offre un cadre de vie paisible à proximité des écoles, commerces et transports. sur une parcelle...
Romain Blanc
26/11/2025
Maison 187 m2 Saint-Jory (31)
Située à saint-jory (31790), cette propriété offre un cadre de vie paisible et familial, propice à la détente et à la convivialité. ce charmant quartier se distingue par son ambiance calme et résidentielle, tout en bénéficiant d'une proximité...
Cyril Broquere
25/11/2025
Maison 90 m2 Saint-Jory (31)
Proche de toutes commodités à pieds, découvrez cette maison neuve de 2023 située dans un environnement agréable de saint-jory. d'une surface d'environ 90m2, elle se compose au rez-de-chaussée d'une grande pièce de vie lumineuse de 40m2, d'une...
Emmanuelle Laborde
25/11/2025
Maison 87 m2 Saint-Jory (31)
Située idéalement en plein centre de saint-jory, cette maison familiale allie confort moderne et fonctionnalité sur deux niveaux. sa construction neuve, prête à être personnalisée selon vos envies, n'attend qu'un coup de peinture pour devenir...
49 annonces
25/11/2025
Maison 210 m2 Saint-Jory (31)
Découvrez cette maison toulousaine de type 7 offrant environ 210 m² sur un terrain clos. au rdc, vous serez séduit par un salon avec sa cheminée et une vaste cuisine-salle à manger cathédrale baigné par la lumière, 1 suite parentale. au 1er...
12 annonces
24/11/2025
Maison 110 m2 Saint-Jory (31)
Sur la commune de saint-jory, dans un secteur résidentiel et à proximité de toutes les commodités, idéalement située et desservie, nous avons le plaisir de vous proposer cette belle maison familiale de 110m2. au rez-de-chaussée: -une entrée...
11 annonces
24/11/2025
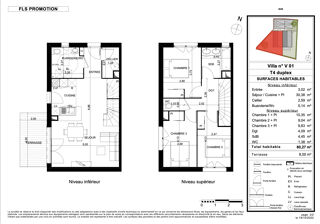
Maison 80 m2 Saint-Jory (31)
A saint-jory, à proximité de l'école jean de la fontaine, dans un secteur calme et résidentiel nous avons le plaisir de vous proposer cette opportunité d'achat: votre villa t4 duplex neuve!!! 80m2 de surface habitable jardin d'environ 100m2...
11 annonces
24/11/2025
Maison 143 m2 Saint-Jory (31)
Située dans un environnement verdoyant et résidentiel, à quelques minutes à pied de la gare et des commodités, cette maison t4 est idéale pour une vie familiale, conviviale et confortable. caractéristiques principales : 3 belles chambres...
11 annonces
24/11/2025
Maison 131 m2 Saint-Jory (31)
Dans un quartier calme à proximité du centre-ville de saint-jory, sur une parcelle d'environ 2000m² avec piscine, venez découvrir cette maison de 131m² habitable comprenant séjour lumineux, cuisine us équipée, 6 chambres, salle de bain, salle...
12 annonces
22/11/2025
Maison 160 m2 Saint-Jory (31)
Située à saint-jory (31790), cette charmante maison bénéficie d'un emplacement prisé à proximité de toulouse, offrant ainsi un cadre de vie paisible tout en restant proche des commodités urbaines. dotée d'un vaste terrain de 822 m², cette...
Jennifer Démarais
21/11/2025
Maison 194 m2 Saint-Jory (31)
Iad france - bérangère sedran vous propose: saint-jory - maison familiale avec jardin et piscine À la recherche d'un nid douillet pour votre famille ? cette maison individuelle, construite en 2005, saura combler toutes vos attentes en termes...
Bérangère Sedran
21/11/2025
1 - 30 sur 35 annonces
Le top villes pour votre recherche immobilière
- Bruguières (31150)
- Lespinasse (31150)
- Fenouillet (31150)
- Castelnau-d'Estrétefonds (31620)
- Gagnac-sur-Garonne (31150)
- Gratentour (31150)
- Seilh (31840)
- Grenade (31330)
- Castelginest (31780)
- Bouloc (31620)
- Aussonne (31840)
- Beauzelle (31700)
- Fonbeauzard (31140)
- Saint-Alban (31140)
- Aucamville (31140)
- Pechbonnieu (31140)
- Montberon (31140)
- Vacquiers (31340)
- Launaguet (31140)
- Mondonville (31700)
- -