Maison rénovée implantée sur un beau terrain clôturé et arboré. je vous invite à venir découvrir cette jolie maison habitation sur un niveau avec un sous-sol à woustviller de 88 m² implantée sur un terrain de 862 m² qui offre un cadre de vie...
Véronique Schneider
18/04/2026
Très belle maison récente à woustviller - 136m². située à woustviller dans un environnement calme et recherché, cette magnifique maison construite en 2023 possède environ 136 m² habitables et est implantée sur un terrain de 6 ares 11. dès...
Claire Ringeisen
05/04/2026
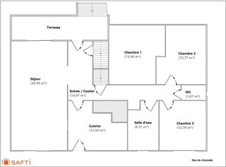
Maison à vendre 3 chambres. Belle maison individuelle de 199 m² sur un joli terrain. vous cherchez de l'espace, de la lumière et du confort moderne ? cette maison est faite pour vous. rénovée avec goût, elle offre des prestations de qualité et des volumes rares sur le...
30/03/2026
Maison 170 m², spacieuse dans un environnement calme et agréable. située dans le charmant village de woustviller, à quelques minutes de sarreguemines et des principaux axes autoroutiers, cette maison individuelle construite en 1982 bénéficie d'un...
Jonathan Quinten
24/03/2026