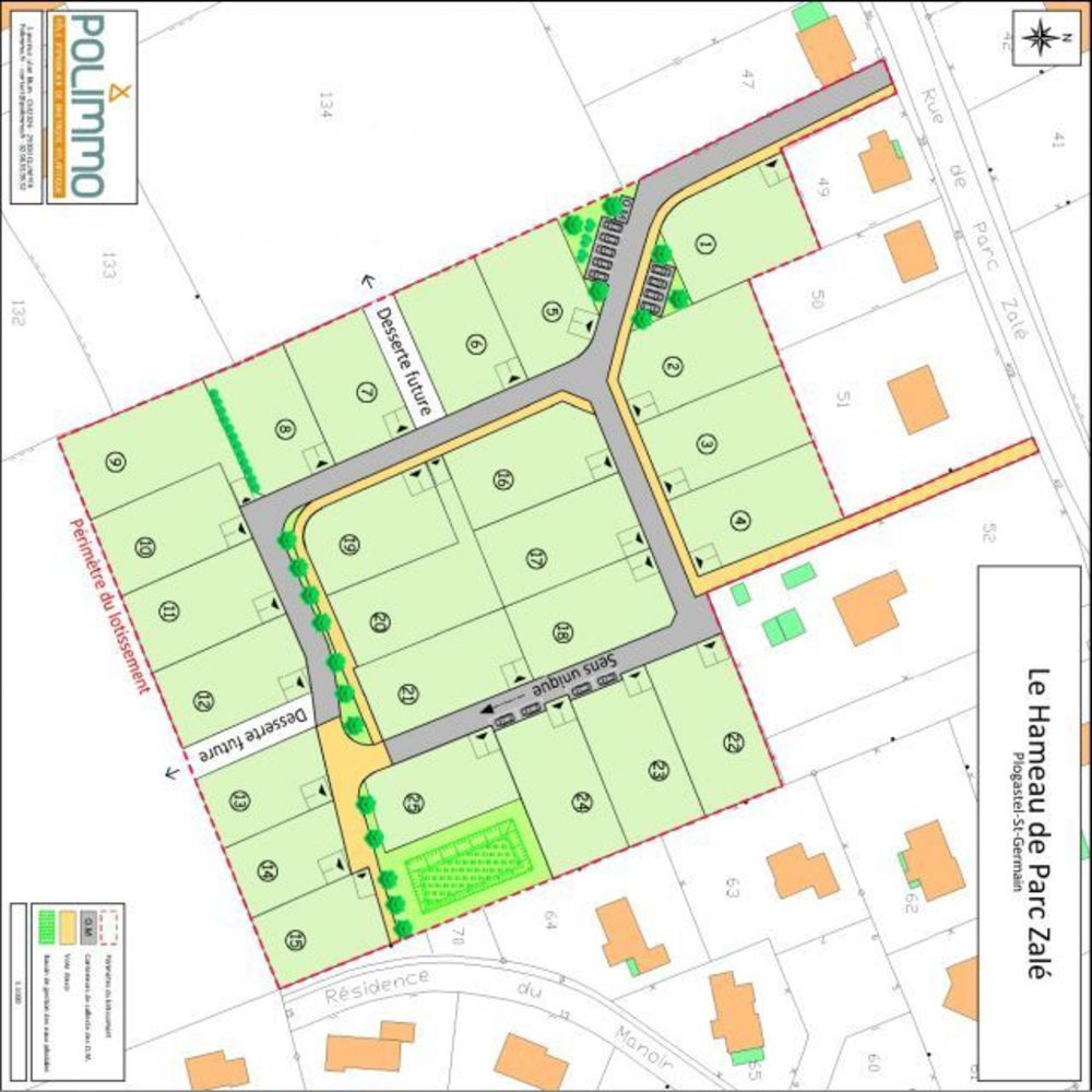
Programme Neuf Plogastel-Saint-Germain (29710)

Type de biens...  

Localisation  

 

Budget  

 

Surface  

 

Pièces  

 

+ de critères  

  Créer une alerte

1 annonce

  Créer une alerte
* Prix net, hors frais notariés, d'enregistrement et de publicité foncière.