-
Annonces
- Immobilier
- Immobilier Neuf
- Construction maison
- Bretagne
- Côtes-d'Armor (22)
- La Vicomté-sur-Rance (22690)
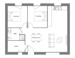
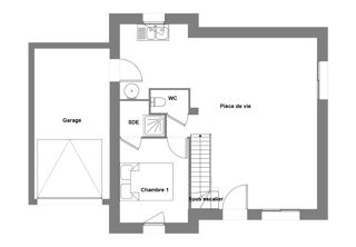
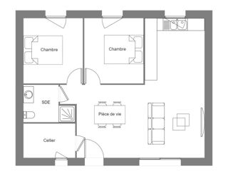
Maison neuve La Vicomté-sur-Rance (22690)
Le top villes pour votre recherche immobilière
- Taden (22100)
- Dinan (22100)
- Saint-Pierre-de-Plesguen (35720)
- Léhon (22100)
- Quévert (22100)
- Le Tronchet (35540)
- Le Minihic-sur-Rance (35870)
- Pleurtuit (35730)
- Pleugueneuc (35720)
- Trélivan (22100)
- Le Hinglé (22100)
- Saint-Domineuc (35190)
- La Fresnais (35111)
- Saint-Malo (35400)
- Saint-Briac-sur-Mer (35800)
- Lancieux (22770)
- Saint-Lunaire (35800)
- Québriac (35190)
- Le Vivier-sur-Mer (35960)
- Longaulnay (35190)
Quel constructeur choisir proche de La Vicomté-sur-Rance ?
Trouvez un professionnel afin de faire construire votre maison individuelle dans la région, consultez l'annuaire des "constructeurs de maisons Bretagne"