-
Annonces
- Immobilier
- Immobilier Neuf
- Construction maison
- Centre
- Eure-et-Loir (28)
- Oulins (28260)
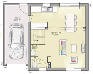
Maison neuve Oulins (28260)
Le top villes pour votre recherche immobilière
- Anet (28260)
- Ézy-sur-Eure (27530)
- La Couture-Boussey (27750)
- Bû (28410)
- Bueil (27730)
- Neauphlette (78980)
- Saint-Lubin-de-la-Haye (28410)
- Bréval (78980)
- Gressey (78550)
- Saint-Georges-Motel (27710)
- Dammartin-en-Serve (78111)
- Houdan (78550)
- Maulette (78550)
- Ménerville (78200)
- Cravent (78270)
- Courgent (78790)
- Richebourg (78550)
- Jumelles (27220)
- Saint-André-de-l'Eure (27220)
- Boutigny-Prouais (28410)
Quel constructeur choisir proche d'Oulins ?
Trouvez un professionnel afin de faire construire votre maison individuelle dans la région, consultez l'annuaire des "constructeurs de maisons Centre"