Location maison T4 - page 3
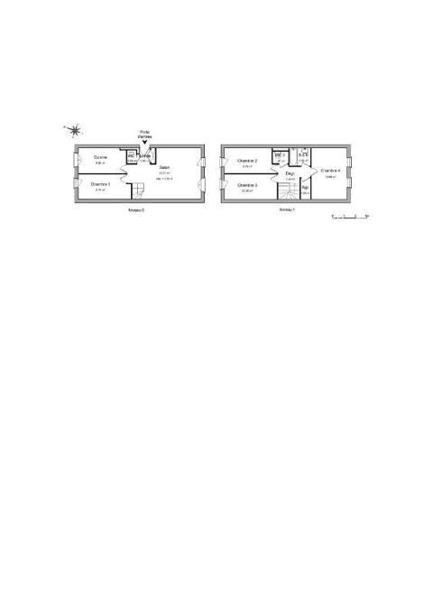
Maison 79 m2 Viviez (12)
Maison t4 renovee - viviez. maison mitoyenne de charme à viviez cette ravissante maison mitoyenne de 78,96 m², rénovée en 2022, vous séduira par son séjour spacieux de 20 m², sa cuisine et salle à manger de 19m² ainsi que ses 3 chambres. une...
50 annonces
22/04/2026
Maison 73 m2 Saillans (33)
Maison t4 a la campagne 73m2. saillans (33141), maison de plain-pied située dans un environnement calme et verdoyant, idéale pour un couple, une famille ou une personne seule en quête de tranquillité. la maison se compose d'une cuisine aménagée...
433 annonces
22/04/2026
Maison 91 m2 Coutras (33)
Maison de plain-pied. coutras, proche de tous les commerces et les commodités. la gare à 5 minutes nous emmène à bordeaux en 40 minutes. l'a89 est aussi facilement accessible en 5 minutes. maison de plain-pied dans résidence privée sécurisée :...
433 annonces
22/04/2026
Maison 117 m2 Saint-Christophe-des-Bardes (33)
Maison mitoyenne a la campagne. saint christophe des bardes à trois minutes de saint-emilion - charmante maison mitoyenne à étage, offrant un cadre de vie paisible et pratique. avec ses 116 m² habitables, elle comprend un grand séjour climatisé,...
433 annonces
22/04/2026
Maison 100 m2 Coutras (33)
Maison. coutras, proche de tous les commerces et les commodités. la gare à 5 minutes nous emmène à bordeaux en 40 minutes. l'a89 est aussi facilement accessible en 5 minutes. cette maison mitoyenne spacieuse et très lumineuse se compose d'un...
433 annonces
22/04/2026
Maison 94 m2 Vasles (79)
maison f4 à vasles. découvrez cette magnifique maison de 94 m², baignée de lumière et offrant un cadre de vie idéal. située dans un quartier paisible, cette propriété non meublée vous permet de laisser libre cours à votre imagination pour créer...
433 annonces
22/04/2026
Maison 76 m2 Bègles (33)
Maison t4 de 75m² avec jardinet et dependance. maison meublée de type 4 composée d'une entrée sur véranda, d'une cuisine ouverte sur le salon, de deux chambres avec rangements, d'une salle d'eau et d'un wc séparés. elle dispose également d'une...
24 annonces
22/04/2026
Maison 70 m2 Chamalières-sur-Loire (43)
Maison à louer chamalières-sur-loire. maison à étage avec terrain cette maison se compose, au rez-de-chaussée, d'une agréable pièce de vie d'environ 30 m² ainsi que d'une salle d'eau. À l'étage, vous trouverez trois chambres lumineuses, idéales...
50 annonces
22/04/2026
Maison 80 m2 La Chapelle-Saint-Mesmin (45)
Maison à louer la chapelle-saint-mesmin. découvrez votre havre de paix à la chapelle-saint-mesmin. immodream chaingy vous présente cette maison récente de 2014, nichée dans un écrin de verdure de 163 m². elle offre 79,80 m² habitables, répartis...
68 annonces
22/04/2026
Maison 126 m2 Lumbin (38)
Lumbin : maison de 4 pièces (126 m²) en location. sans honoraire a louer / lumbin rue de la fontaine, dans une maison divisée un appartement de type 4 piÈces + cuisine de 126 m² avec terrasse - proche de grenoble. l'appartement se compose d'un...
160 annonces
22/04/2026
Maison 94 m2 Morez (39)
Belle maison meublé de 93 m² à hauts de bienne. ref 2489mds : découvrez cette spacieuse maison meublée de 93,61 m² située dans la charmante commune de la mouille. doté de 3 chambres, ce bien lumineux offre tout le confort nécessaire avec ses...
587 annonces
22/04/2026
Maison 73 m2 Libourne (33)
Libourne quartier epinette maison avec jardin. dans quartier calme echoppe de type 4 env 70m2 avec jardinc los et terrasse venez découvrir cette échoppe de 70m2 composée au rez-de-chaussée d'une belle cuisine aménagée et équipée donnant sur la...
25 annonces
22/04/2026
Maison 98 m2 Chavanoz (38)
Nouveaute ! maison individuelle t4 sur chavanoz. l'agence sublimo vous propose cette magnifique maison récente de 2022, située sur la commune de chavanoz, à 20 min de l'aéroport, du tramway et des axes autoroutiers. d'une surface habitable de...
50 annonces
22/04/2026
Maison 180 m2 Ymonville (28)
Maison type 4 - jardin. ymonville belle maison récente située dans un secteur calme à ymonville, à 30 minutes de chartres et 45 minutes d'orléans. elle se compose d'une grande pièce de vie lumineuse comprenant un salon-salle à manger...
50 annonces
22/04/2026
47 annonces
22/04/2026
Maison 91 m2 Saint-Sorlin-en-Valloire (26)
Maison t4 plain-pied avec terrain clos. a louer sur la commune de saint-sorlin en valloire, maison t4 de 91 m2 de plain-pied. maison construite en 2007, elle est composée : d'une entrée, un séjour, une salle à manger, une cuisine, trois...
49 annonces
22/04/2026
Maison 110 m2 Sainte-Clotilde (97)
Maison meublée - 4 pièces - 110 m². nous vous proposons à la location et en exclusivite, cette charmante maison meublée de 110 m² située à la bretagne, dans un quartier calme et non loin de toutes les commodités. elle est composée d'un séjour...
30 annonces
22/04/2026
Maison 84 m2 Wardrecques (62)
Maison neuve 3chs jardin garage wardrecques. maison neuve, à wardrecques, avec au rdc : une entrée, un wc, un salon/séjour ouvert sur une cuisine aménagée a l'étage : 3 chambres, une salle de bains avec wc. un jardin, une terrasse, un...
48 annonces
22/04/2026
Maison 113 m2 Épieds (27)
Maison de charme avec, cuisine ouverte aménagée ,grand séjour avec cheminée insert ,une pièce en mezzanine ,trois chambres à coucher dont une avec salle d'eau privative et wc individuels, une salle de bains avec baignoire ,vasque et wc suspendu....
16 annonces
21/04/2026
Maison 76 m2 Le Morne-Vert (97)
À louer - t4 en haut de villa avec vue mer. À seulement 5 minutes du carbet, découvrez ce haut de villa t4 en cours de rénovation, disponible au 1er juin 2026 (bail de 3 ans - logement vide). situé dans un environnement calme et verdoyant, ce...
Camille Bluteau
21/04/2026
Maison 103 m2 Ajaccio (20)
Maison col du pruno alata. fiche id-par27281g : a louer a l année au col du pruno a alata une tres jolie villa de type t4 non meuble, en rdc +1. elle se compose de 3 chambres, 1 salle de bain et 2 salles d eau . elle dispose egalement d un double...
1 838 annonces
21/04/2026
Maison 80 m2 Marssac-sur-Tarn (81)
Maison marssac sur tarn. venez découvrir cette jolie maison mitoyenne comprenant au rez-de-chaussée un séjour avec une cuisine ouverte aménagée et équipée, un wc et un garage. au 1er étage, vous trouverez trois chambres avec placard, un wc, une...
71 annonces
21/04/2026
Maison Léogeats (33)
Maison/villa t4. leogeats, 1100 euros charges comprises maison t4 de plain pied État neuf 93 m2. avec terrasse 25m2 + jardin clos et cellier. comprenant sejour, cuisine americaine, 3 chambres,salle de bain, salle d'eau, wc. proche commodites....
604 annonces
21/04/2026
Maison Lugos (33)
Maison/villa t4. lugos, 1295 charges comprises. maison t4 individuelle en tres bon etat de 105 m2 avec poutres apparentes sur terrasse de 100 m2 et jardin clos 1200 m2. composee d'un sejour double, cuisine americaine equipee, trois chambres,...
604 annonces
21/04/2026
Maison Toulenne (33)
Maison/villa t4. toulenne, 1240 euros charges comprises maison t4 landaise, en pierre apparentes tres bon etat 131 m2. avec terrasse + jardin 2500m2. comprenant sejour, cuisine amenagee, 3 chambres, salle de bain, salle d'eau, wc. proche...
604 annonces
21/04/2026
Maison Libourne (33)
Maison/villa t4. libourne, 1208 euros charges comprises maison t4 type echoppe refaite a neuf 85 m2. avec jardin clos + parking. comprenant entree, salon, cuisine amenagee, 3 chambres, salle d'eau, wc. proche commodites. caution : 1 mois hc....
604 annonces
21/04/2026
Maison Talence (33)
Maison/villa t4. talence, 1600 euros + charges 35 euros maison t4 etat neuf 94 m2 avec jardin clos + parking . comprenant entree, salon, sejour double, cuisine americaine, 3 chambres, 2 salles d'eau, 2 wc. proche transports et...
604 annonces
21/04/2026
Maison Langoiran (33)
Maison/villa t4. langoiran, 850 euros + charges 80 euros maison t4 tres bon etat 90 m2. avec jardin 400m2 . comprenant sejour, salon, 2 chambres,salle de bain, wc. proche commodites. caution : 1 mois hc. a visiter ladp fd 220 euros ht...
604 annonces
21/04/2026
Maison Saint-André-de-Cubzac (33)
Maison/villa t4. lande-de-fronsac, 1209 euros charges comprises maison t4 en tres bon etat de 93 m2. avec terrasse et un garage. comprenant entree, sejour, salon, cuisine americaine equipee, trois chambres, salle d'eau, wc. proche commodites....
604 annonces
21/04/2026
Maison 79 m2 Plaisance-du-Touch (31)
ExclusivitÉ - villa À louer : à plaisance du touch (31830) venez découvrir cette villa t4 de 78,63 m². elle est composée d'un séjour de 18 m², de trois chambres et d'une cuisine aménagée. elle comporte également une salle d'eau. la maison...
58 annonces
21/04/2026