Top recherches :
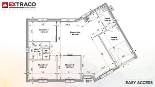
Vente d'une maison f4 (98 m²) à dargnies maison 4 piÈces neuve À vendre à 12 km de la manche, votre agence les maisons extraco eu est ravie de vous présenter cette maison de 4 pièces de plain-pied de 98 m² à dargnies (80570). conçue de plain-pied,...
256 annonces
13/04/2026
Dargnies : maison f4 (80 m²) en vente maison 4 piÈces neuve À vendre : à 12 km de la manche, à dargnies (80570), les maisons extraco eu vous présente cette maison de 4 pièces de plain-pied de 80 m². son intérieur inclut trois chambres, une cuisine...
256 annonces
13/04/2026
Vente : maison de 4 pièces (83 m²) à dargnies maison 4 piÈces neuve À vendre à 12 km de la manche, notre agence les maisons extraco eu est ravie de vous proposer à dargnies (80570), cette maison de 4 pièces de plain-pied de 83 m² et de 1 200 m² de...
256 annonces
13/04/2026
Vente maison 3 chambres. Corps de ferme au calme à fort potentiel. maison composée d'une entrée desservant un séjour avec cheminée, une cuisine aménagée et équipée avec accès extérieur, arrière cuisine de 30m² pouvant être aménagée en suite parentale afin d'obtenir une...
Romain Seheut
12/04/2026
Dargnies : maison 71 m², 3chb, cour et dépendances.. dargnies : aux portes de la vallée de la bresle et des trois villes sœurs, cette charmante maison de campagne est idéalement située dans un bourg avec les commodités du quotidien. composée d'un...
3 993 annonces
02/04/2026
Vente : maison f4 (71 m²) à dargnies maison 4 piÈces neuve À vendre à 12 km de la manche, à dargnies (80570), venez découvrir cette maison de 4 pièces de plain-pied de 71 m². conçue de plain-pied, elle est composée de deux chambres, d'une cuisine...
256 annonces
30/03/2026
Vente : maison f5 (85 m²) à dargnies maison 5 piÈces neuve À vendre à 12 km de la manche, votre agence les maisons extraco eu est ravie de vous proposer cette maison de 5 pièces de 85 m² et de 1 200 m² de terrain à dargnies (80570). cette maison...
256 annonces
30/03/2026
Vente : maison de 5 pièces (92 m²) à dargnies maison 5 piÈces neuve À vendre : à 12 km de la manche, à dargnies (80570), les maisons extraco eu vous présente cette maison de 5 pièces de plain-pied de 92 m². conçue de plain-pied, elle propose...
256 annonces
30/03/2026
Achat maison 6 chambres. Maison familiale 6 chambres. elle est composée d'un hall d'entrée desservant sur un séjour avec lumière traversante, une cuisine avec arrière cuisine, un salon, une chambre, une salle d'eau avec wc et un wc indépendant ainsi qu'une véranda de 50m²...
Romain Seheut
24/03/2026
Maison f4 (80 m²) en vente à dargnies maison 4 piÈces neuve À vendre : située à 12 km de la manche, à dargnies (80570), nous vous proposons cette maison de 4 pièces de plain-pied de 80 m². conçue de plain-pied, elle offre trois chambres, une...
256 annonces
22/03/2026
Vente d'une maison f5 (105 m²) à dargnies maison 5 piÈces neuve en vente : à 12 km de la manche, nous vous présentons cette maison de 5 pièces de 105 m² à dargnies (80570). elle est composée de quatre chambres, d'une cuisine et de deux salles de...
256 annonces
22/03/2026
Vente : maison f4 (84 m²) à dargnies maison 4 piÈces neuve À 12 km de la manche, votre agence les maisons extraco eu est ravie de vous proposer en vente à dargnies (80570), cette maison de 4 pièces de plain-pied de 84 m² et de 1 200 m² de terrain....
256 annonces
22/03/2026
Vente : maison t4 (85 m²) à dargnies maison 4 piÈces neuve À vendre : localisée à 12 km de la manche, nous vous présentons cette maison de 4 pièces de plain-pied de 85 m² et de 1 200 m² de terrain à dargnies (80570). conçue de plain-pied, elle...
256 annonces
13/03/2026
Maison de 4 pièces (84 m²) en vente à dargnies maison 4 piÈces neuve À vendre à 12 km de la manche, nous sommes ravis de vous présenter cette maison de 4 pièces de plain-pied de 84 m² à dargnies (80570). son intérieur comporte trois chambres, une...
256 annonces
13/03/2026
Dargnies : maison de 5 pièces (105 m²) en vente maison 5 piÈces neuve À vendre : localisée à 12 km de la manche, notre agence les maisons extraco eu est ravie de vous présenter cette maison de 5 pièces de plain-pied de 105 m² à dargnies (80570)....
256 annonces
13/03/2026
256 annonces
13/04/2026
Christelle Ruelle
02/04/2026
256 annonces
30/03/2026
256 annonces
22/03/2026
256 annonces
13/03/2026