Top recherches :
62 annonces
01/04/2026
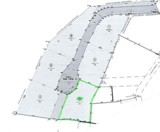
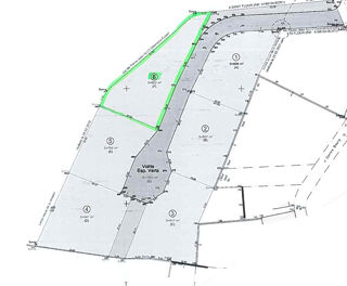
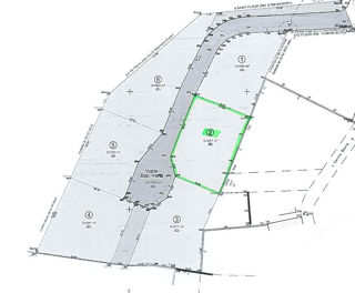
Terrain lieutades 806 m2. dans le village de lieutades (cantal), belle parcelle de terrain constructible, d'une superficie totale de 806 m2, dans un petit lotissement offrant une belle vue sur un joli paysage de moyenne montagne. vous apprécierez...
62 annonces
27/03/2026
62 annonces
27/03/2026
62 annonces
27/03/2026
62 annonces
27/03/2026
62 annonces
27/03/2026