-
Annonces
- Immobilier
- Immobilier Neuf
- Construction maison
- Île-de-France
- Yvelines (78)
- Hermeray (78125)
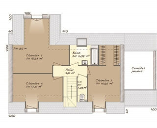
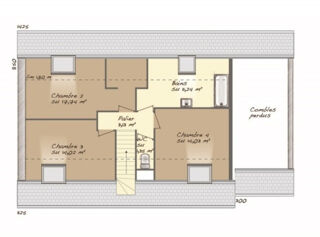
Maison neuve Hermeray (78125)
Comment acheter une maison à Hermeray ?
Avez-vous pensé à l'immobilier ancien ? Découvrez nos annonces de maisons à vendre à Hermeray.
Le top villes pour votre recherche immobilière
- Droue-sur-Drouette (28230)
- Maintenon (28130)
- Orphin (78125)
- Nogent-le-Roi (28210)
- Rambouillet (78120)
- Saint-Léger-en-Yvelines (78610)
- Gallardon (28320)
- Boutigny-Prouais (28410)
- Le Perray-en-Yvelines (78610)
- Gambais (78950)
- Auffargis (78610)
- Houdan (78550)
- Maulette (78550)
- Ablis (78660)
- Richebourg (78550)
- Coltainville (28300)
- Méré (78490)
- Vicq (78490)
- Montfort-l'Amaury (78490)
- Saint-Prest (28300)
Quel constructeur choisir proche de Hermeray ?
Trouvez un professionnel afin de faire construire votre maison individuelle dans la région, consultez l'annuaire des "constructeurs de maisons Ile-de-france"