Top recherches :
T2 duplex 35 m² – golf de palmola. t2 duplex 35 m² avec jouissance du jardin – golf de palmola – calme & rentabilité situé sur le prestigieux golf de palmola, dans un environnement très calme et privé, charmant appartement t2 en duplex d'environ...
Sheherazade El Fatihi
01/04/2026
Maison 4 pièces 120m². située dans le charmant village de buzet-sur-tarn (31660), cette maison bénéficie d'un cadre paisible et convivial, à proximité des commerces locaux et des écoles. idéalement placée à seulement 5min de l'accès de...
Inès Galindo
02/04/2026
Vente maison/villa 7 pièces. iad france - carole redler vous propose: maison t7 en viager au coeur du golf de palmola à 15 minutes de toulouse. viager occupÉ avec réserve du droit d'usage et d'habitation au profit d'une femme de 82 ans. en...
Carole Redler
01/04/2026
Vente maison/villa 8 pièces. iad france - martin weiler vous propose: buzet sur tarn - maison familiale de charme – 206 m² – parc arboré d'environ 1 700 m² dans un environnement calme et verdoyant, au coeur d'un joli village, cette belle maison...
Martin Weiler
01/04/2026
Achat maison 3 chambres. Toulouse, 25 min, buzet sur tarn, villa de plain-pied t4 de 108 m² avec garage de 35 m². toulouse, 25 min, buzet sur tarn, villa de plain-pied t4 de 108 m² avec garage de 35 m². situé dans le village de buzet sur tarn, exclusivité capifrance,...
Nathalie Maurette
31/03/2026
Maison. fiche id-par178545 : 15 min des portes de toulous. plein centre de buzet, moins de 5min de l'a68. cette ravissante et chaleureuse villa de plain-pied, fraichement rénovée, offre en plus de sa réception traversante avec poêle à bois, une...
1 841 annonces
26/03/2026
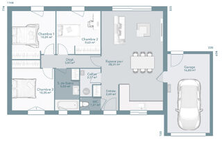
Découvrez le modèle rosée 86 m², une élégante maison de plain-pied conçue dans le respect de l'architecture de notre région. la villa se compose d'un spacieux salon/séjour dotée d'une grande baie vitrée. la cuisine ouverte avec un accès direct...
483 annonces
25/03/2026
Conçue autour d'un volume à étage, cette belle maison familiale de 100 m² habitable saura vous séduire par son architecture contemporaine et son aménagement évolutif. cette villa est composée au rez-de-chaussée d'un grand espace de vie d'environ...
483 annonces
25/03/2026
Le modèle quatre saisons est une maison à étage qui vous plaira par sa simplicité et son agencement pensé pour améliorer votre confort de vie. au rez de chaussée, vous disposerez d'un espace vie de 39 m² communiquant sur un garage, d'une belle...
483 annonces
25/03/2026
Vente maison 5 chambres. Maison à rénover potentiel exceptionnel. rare sur le secteur ! découvrez cette maison cossue de style Île-de-france, pleine de charme et offrant des volumes exceptionnels, développant près de 300 m² habitables. vous bénéficiez d'un sous-sol...
40 annonces
21/03/2026
Vente maison 3 chambres. Maison buzet sur tarn 4 pièce(s) 109 m2. située sur la commune de buzet sur tarn, venez découvrir cette jolie maison de type 4 d'environ 109 m², entièrement rénovée, située sur un terrain d'environ 829 m² arboré et clôturé, à proximité des...
176 annonces
19/03/2026
Villa plain pied contemporaine avec jacuzzi. a 10 min de montastruc la conseillère, sur la petite commune de buzet sur tarn, au cœur d'un quartier calme, cette maison contemporaine de plain-pied, achevée en 2025, séduira par son confort moderne...
Mélanie Thomas
17/03/2026
Maison à vendre 3 chambres. Maison de caractère 5 pièce(s) 149 m2 garage et jardin. 5 min a68 centre village buzet-sur-tarn ? centre village ? maison de charme clés en main idéalement située au coeur de buzet-sur-tarn, cette maison de caractère traversante sur deux rues...
40 annonces
14/03/2026
Achat maison 4 chambres. Maison 139 m2 sur un terrain de 469 m2. villa contemporaine de plain-pied 5 piÈces 139 m2 jacuzzi secteur buzet-sur-tarn découvrez cette superbe villa contemporaine achevée en 2025, située à buzet-sur-tarn, au cœur d'un quartier résidentiel...
1 042 annonces
14/03/2026
"votre agence maisons france confort d'aucamville vous propose ce projet maison + terrain sur la commune de buzet sur tarn. actua 73 est un modèle de maison de 73 m² à la ligne épurée et moderne en re2020. cette maison, où chaque espace est...
831 annonces
13/03/2026
"votre agence maisons france confort d'aucamville vous propose ce beau projet maison + terrain sur la commune de buzet sur tarn. cette maison en re2020 de 120 m² avec son toit plat et ses lignes très modernes s'adaptera parfaitement à...
831 annonces
13/03/2026
"votre agence maisons france confort d'aucamville vous propose ce beau projet maison + terrain à 5 mn de buzet sur tarn. de plain-pied, ce plan de maison de 110 m² est construit en l pour garantir des espaces jour et nuit parfaitement distincts....
831 annonces
13/03/2026
"votre agence maisons france confort d'aucamville vous propose ce beau projet maison + terrain proche de la commune de buzet sur tarn. avec sa façade sobre et élégante, cette maison est conçue de manière ingénieuse et fonctionnelle, les volumes...
831 annonces
13/03/2026
"votre agence maisons france confort d'aucamville vous propose ce beau projet maison + terrain sur la commune de buzet sur tarn. de plain-pied, ce plan de maison de 110 m² est construit en l pour garantir des espaces jour et nuit parfaitement...
831 annonces
13/03/2026
"votre agence maisons france confort d'aucamville vous propose ce beau projet maison + terrain à 5 minutes de la commune de buzet sur tarn. la ligne de maison actua est conçue pour coller aux tendances actuelles ! cette maison de plain-pied de 105...
831 annonces
13/03/2026
"votre agence maisons france confort d'aucamville vous propose ce beau projet maison + terrain à proximité de la commune de buzet sur tarn. faire le choix d'une maison fonctionnelle et optimisée c'est opter pour optima 90 : une grande pièce de vie...
831 annonces
13/03/2026
"votre agence maisons france confort d'aucamville vous propose ce beau projet maison + terrain proche de la commune de buzet sur tarn. vous souhaitez faire construire une maison de plain-pied en re2020? optez pour le modèle actua 95 ! dans ses 95...
831 annonces
13/03/2026
"votre agence maisons france confort d'aucamville vous propose ce beau projet maison + terrain proche de buzet sur tarn. optez pour le charme de la maison traditionnelle du sud de la france avec notre modèle bastide 95+20 en re2020. avec ses...
831 annonces
13/03/2026
"votre agence maisons france confort d'aucamville vous propose ce beau projet maison + terrain proche de la commune de buzet sur tarn. avec optima 125, vous optez pour une pièce de vie volumineuse, agréable et fonctionnelle et des espaces de nuit...
831 annonces
13/03/2026
"votre agence maisons france confort d'aucamville vous propose ce beau projet maison + terrain sur la commune de buzet sur tarn. la ligne de maison actua est conçue pour coller aux tendances actuelles ! cette maison de plain-pied de 105 m² en...
831 annonces
13/03/2026
"votre agence maisons france confort d'aucamville vous propose sur la commune de buzet sur tarn ce projet terrain + maison sur cette parcelle de 960 m². tout en douceur de vie, cette maison s'inscrit naturellement dans une architecture en l,...
831 annonces
13/03/2026
"votre agence maisons france confort d'aucamville vous propose ce beau projet maison + terrain proche de la commune buzet sur tarn. la bastide, c'est une maison élégante qui allie tradition et authenticité à l'image des maisons du sud de la...
831 annonces
13/03/2026
"votre agence maisons france confort d'aucamville vous propose ce projet maison + terrain proche de la commune de buzet sur tarn. actua 73 est un modèle de maison de 73 m² à la ligne épurée et moderne en re2020. cette maison, où chaque espace est...
831 annonces
13/03/2026
"votre agence maisons france confort d'aucamville vous propose ce beau projet maison + terrain à proximité de buzet sur tarn. d'une architecture sobre et élégante, cette maison est conçue de manière ingénieuse, fonctionnelle et adaptable. les...
831 annonces
13/03/2026
"votre agence maisons france confort d'aucamville vous propose ce beau projet maison + terrain à proximité de la commune de buzet sur tarn. vous souhaitez faire construire une maison de plain-pied ? optez pour le modèle actua 83 en re2020! dans...
831 annonces
13/03/2026
1 - 30 sur 52 annonces