Top recherches :
Appartement à vendre 20 chambres. ? immeuble de rapport – cotonnière balata / matoury (97351). À saisir – immeuble de rapport À matoury (secteur cotonnière - balata) une opportunité rare sur le marché guyanais emplacement privilégié dans un secteur calme et résidentiel, à...
René Gene
30/04/2026
Villa de standing avec piscine et prestations haut de gamme. située à cayenne (97300), cette propriété de standing profite d'un emplacement privilégié sur la route de montabo, au sein d'un lotissement exclusif. proche de la mer, des services et...
Eugène Mégange
30/04/2026
Achat appartement 2 chambres. Superbe t3 idéalement situé à l'éco quartier à rémire montjoly. j'ai le plaisir de vous présenter ce superbe appartement idéalement situé à l'écoquartier de rémire montjoly. actuellement libre d'occupant. vous serez agréablement surpris en...
Jean Michel Pila
30/04/2026
Un coup de cœur pour cette propriété de 195m². située à matoury (97351), cette propriété bénéficie d'un emplacement intéressant, la maison est un havre de confort moderne. À l'extérieur, la maison s'étend sur un terrain de 942 m², avec une...
Eugène Mégange
30/04/2026
Vente appartement 2 chambres. Superbe t3 à rémire montjoly. j'ai le plaisir de vous présenter ce superbe t3 rue du vieux pont au début de la route de ddc à rémire montjoly. l'appartement est situé dans une très belle résidence calme et sécurisée, au 1 er étage. de très beaux...
Jean Michel Pila
30/04/2026
La petite maison au bord du lac. dans le quartier prisé maillard de macouria (97355), cette charmante maison de 47 m² offre une vue imprenable sur le lac maillard. proche des écoles, commerces et transports, elle allie tranquillité et praticité au...
Eugène Mégange
30/04/2026
Appartement à vendre 4 pièces saint laurent du maroni (973). appartement type iv en rez-de-chaussée, fonctionnel et bien agencé, situé dans une résidence au centre ville de saint laurent. descriptif du bien : 1 séjour avec cuisine, 3 chambres,...
Dylan Lapointe
30/04/2026
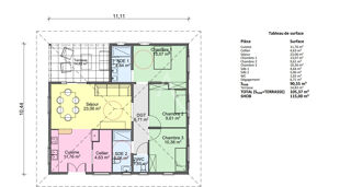
Dpt guyane (973), à vendre maison p5 - terrain de 687,00 m². et voici une super occasion sur le type de maison t5 traditionnelle que possÈde ce dÉpartement, de construction entiÈrement en bois traditionnel le bien possÈde un sÉjour, trois...
Fred Bruno
30/04/2026
Appartement à vendre 2 pièces cayenne (973). dans la résidence au cœur de ville, au rez-de-chaussée , un t2 comprenant entrée, séjour avec cuisine, une salle d'eau avec wc, un dégagement. il se prolonge par une varangue et un jardin privatif de...
Dylan Lapointe
30/04/2026
Maison à vendre 3 chambres. A vendre - maison r+1 t4 – clos d'arletty, rémire-montjoly. au cœur d'un quartier résidentiel calme et très recherché de rémire-montjoly, dans le secteur prisé du clos d'arletty, cette maison r+1 de type t4 offre un cadre de vie harmonieux,...
Pierre Assard
30/04/2026
Studio au rez de chausse avec jardinet. idéalement situé sur la route de la madeleine, dans un secteur prisé et à proximité immédiate de toutes les commodités (écoles, commerces, transports…), ce spacieux studio en rez-de-chaussée avec jardinet...
Audrey Durand
30/04/2026
Maison à vendre 5 pièces (973). a vendre une villa t5 d'exception – un investissement idÉal À cayenne (973) ! découvrez cette sublime villa t5 de 152 m², construite en 2017, nichée dans une impasse d'un quartier résidentiel recherché à...
Patricia Rupert
30/04/2026
Spacieux studio au 1er etage d'une residence avec piscine et terrain de tennis. idéalement situé sur la route de la madeleine, dans un secteur recherché et à proximité immédiate des écoles, commerces et transports, ce spacieux studio au 1er étage...
Audrey Durand
30/04/2026
Achat maison 2 chambres. A vendre - charmante maison de ville avec jacuzzi – havre de paix assuré !. description : À vendre, maison de ville idéale pour un cadre de vie paisible. située dans un quartier calme, cette propriété combine confort moderne et détente avec un...
Jean-gilles Maignan
30/04/2026
Achat appartement 3 chambres. Programme de 7 villas en etat futur d'achevement - route de stoupan. dans la commune de matoury, sur la route de stoupan, l'adresse vous propose en exclusivité ce programme de 7 villas individuelles neuves. les biens commercialisés comportent une...
35 annonces
30/04/2026
Maison à vendre 3 chambres. A vendre maison de plain-pied t5 – rémire-montjoly. située à rémire-montjoly, dans un environnement calme et très prisé, idéalement positionnée entre carrefour market et le rond-point du savoureux gâteau, cette maison bénéficie d'un emplacement...
Melia Rebours
30/04/2026
Achat appartement 2 chambres. Clos de baduel appartement t3 c53. situé dans une résidence calme et sécurisée cet appartement de type t3, d'une surface totale de 71 m2 comprend: un salon une cuisine un cellier une salle de bain deux chambres une terrasse une place de parking...
35 annonces
30/04/2026
Grande maison t6 avec terrasse et jardin – quartier calme du lac bleu à saint-laurent-du-maroni. cette maison de 120 m², située dans un secteur calme et recherché, offre des volumes généreux et un agencement fonctionnel – idéale pour une grande...
Richard Nedu
30/04/2026
Achat appartement 3 chambres. Appartement cayenne 4 pièce(s) 77.18 m2. situé dans une résidence sécurisée et calme nous vous proposons un grand appartement de type t4 comprenant: un salon une cuisine américaine un cellier une salle de bains un wc trois chambres une grande...
35 annonces
30/04/2026
Achat maison 8 chambres. Lot de 2 maisons mitoyennes avec piscine et jardin – quartier lac bleu, saint-laurent-du-maroni. idéal investisseur ou projet familial ! À vendre ensemble, deux maisons mitoyennes situées dans le quartier prisé et calme du lac bleu à...
Richard Nedu
30/04/2026
Achat appartement 2 chambres. Appartement t3 c 40 baduel. appartement t3 situé dans une résidence calme et sécurisée comprenant: un salon une cuisine un cellier une salle de bain deux chambres une terrasse une place de parking privative. la résidence dispose d'une piscine...
35 annonces
30/04/2026
Maison t4 avec piscine, terrasse et jardin – quartier calme du lac bleu à saint-laurent-du-maroni. cette maison de 80 m², située dans un secteur calme et recherché, offre un cadre de vie agréable, idéal pour un premier achat ou un investissement...
Richard Nedu
30/04/2026
Appartement à vendre 2 chambres. Spacieux appartement type t4 cayenne. non loin du jardin botanique, à proximité immédiate du futur hôtel de police. au 1er étage d'une résidence qui fait peau neuve, (travaux entièrement financés) cet appartement lumineux offre une belle pièce de...
35 annonces
30/04/2026
Maison à vendre 5 pièces saint laurent du maroni (973). dans une résidence privée et sécurisée située à lac bleu, découvrez cette charmante maison familiale offrant confort et tranquillité. elle se compose de : * une cuisine aménagée et...
Richard Nedu
30/04/2026
Vente appartement 2 chambres. Appartement t3 de 70m². votre agence l'adresse guyane vous propose ce magnifique appartement de type t3 dans un immeuble de 5 étages sécurisé, ce dernier se trouve au 4ème étage avec un accès donnant sur un ascenseur et des escaliers,...
35 annonces
30/04/2026
Maison à vendre 4 pièces saint laurent du maroni (973). À vendre : charmante maison t4 sur 1631 m² de terrain située dans un quartier paisible et recherché, cette magnifique maison de type t4 offre une opportunité rare sur le marché. Édifiée...
Dylan Lapointe
30/04/2026
Achat appartement 1 chambre. Appartement t2 de 66.09m² - cayenne. l'adresse vous propose un appartement t2. composé d'une entrée de 2.82 m², un séjour de 20.52 m², un dégagement de 1.18m², une salle d'eau de 5.83m², une cuisine de 6.87m² ,une buanderie de 3.17m² , une...
35 annonces
30/04/2026
Le clos du pre - 8 villas neuves - macouria - prefontaine. dans la commune de macouria, à préfontaine, l'adresse guyane vous propose ce programme neuf du 8 villas individuelles de type 4 composées d'une entrée, d'un dégagement, d'un séjour, d'un...
35 annonces
30/04/2026
Achat appartement 1 chambre. Appartement t2 de 66,09m2 sur la route de montabo. votre agence l'adresse immobilière à le plaisir vous propose un très grand appartement de typet2 proche de toute commodités et commerces. composé d'une entrée de 2.82 m², un séjour de 20.52 m²,...
35 annonces
30/04/2026
35 annonces
30/04/2026
1 - 30 sur 301 annonces