Top recherches :
Achat maison 3 chambres. Maison f4. etes-vous en quête de tranquillité, de nature et d'authenticité ? nous vous proposons cette adorable maison ancienne et son jardin enchanteur. a 23 km du centre de tours, son terrain d'environ 1100 m² au calme comprend une partie...
556 annonces
23/03/2026
Authentique longère de charme à rouziers-de-touraine. vous rêvez d'un bien de caractère au cœur d'un village dynamique de touraine ? venez découvrir cette magnifique longère t8 datant de 1789 sur une parcelle de plus de 1300 m², pleine de charme...
Maria Gonzalez
20/03/2026
Maison de plain pied à personnaliser. un projet à votre image °°° promesse de vente en cours°°° offrez-vous l'opportunité unique de façonner votre futur chez-vous cette maison de plain pied à terminer est le terrain parfait pour laisser libre...
Stephanie Peronneau
18/03/2026
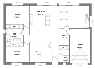
Belle maison de 84 m² de plain-pied. vous retrouverez 3 chambres spacieuses avec rangements intégrés, une salle de bain, un cellier et une grande pièce de vie ouverte de 44 m². les grandes baies vitrées (3 mètres)et les fenêtres panoramiques...
506 annonces
17/03/2026
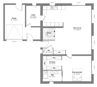
Belle maison à construire de 127 m², avec une grande pièce de vie lumineuse de plus de 46 m² bénéficiant d'une double exposition. au rez-de-chaussée, une suite parentale confortable avec grand dressing et salle d'eau privative. À l'étage, trois...
506 annonces
17/03/2026
Voici une belle maison à construire de 101m², comprenant quatre chambres dont une suite parentale. elle dispose de deux salles de bain pour plus de confort. la grande pièce de vie de plus de 40m² est lumineuse grâce à ses deux baies vitrées. cette...
506 annonces
17/03/2026
506 annonces
17/03/2026